Next Project

Market Space-(JODHPUR) An urban intervention

Part 1 Project 2003
Ateya Khorakiwala
Kamla Raheja Vidyanidhi Institute Mumbai | India
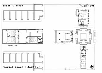
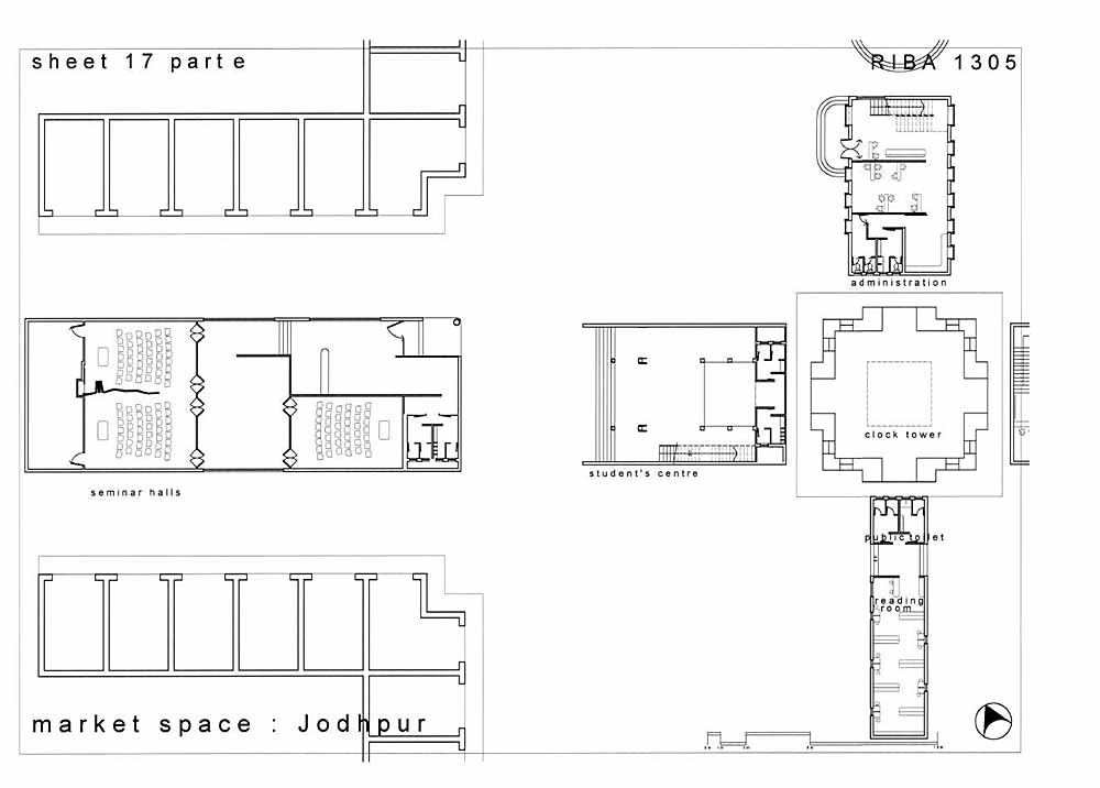
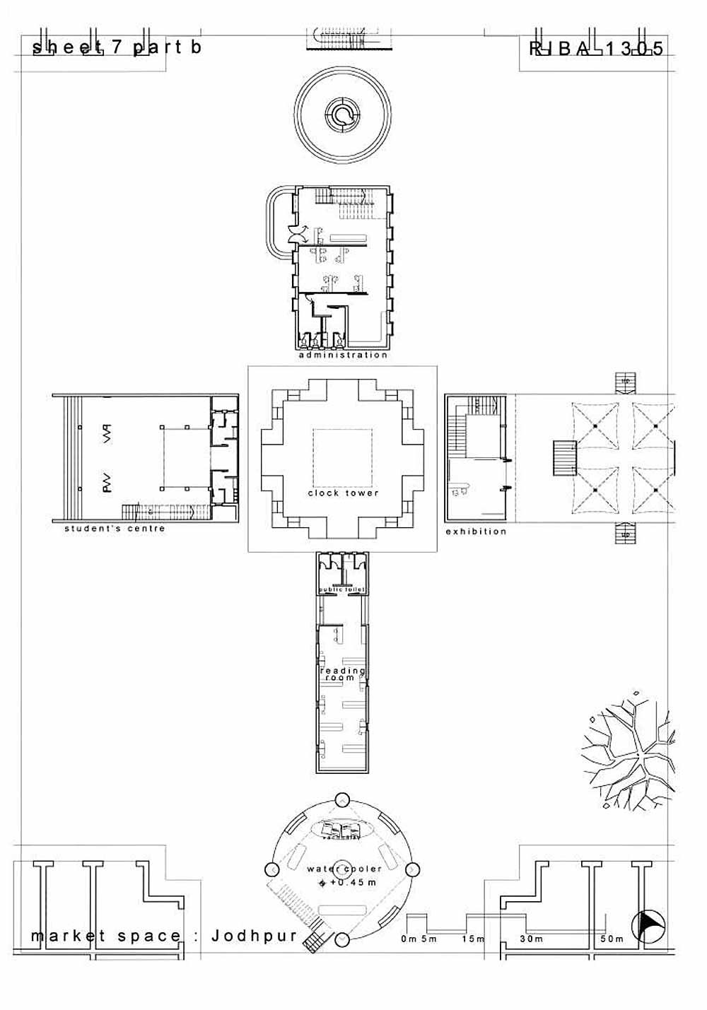
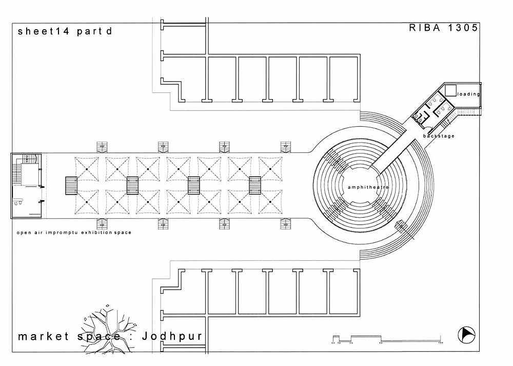
The administrative shifts in Jodhpur are visibly manifest in the urban fabric. The city has a combination of trade and tourist activity, with the medieval fort as the central tourist attraction and the colonial market as the central trading node. The design project is located in the colonial market and was undertaken as a result of a series of studies that attempted to understand the socio-economic fabric of the city. The colonial market used local detailing to inject a square within the organic fabric. In post colonial planning an axis has been carved out of the fabric. This language of planning has been inherently violent and the market forces have distorted the master plan with an equal aggression. The design insertion realizes the site as a dynamic entity that is continually shaped and reshaped by internal socio-economic and market forces. The insertions made provide the space and services allowing the shifting trade patterns and forces to negotiate their own programme and territory.


Market Space – Jodhpur

The project attempts to replicate the dynamics of formal imposition of the colonial square on an organic fabric by objectifying buildings as a series of artefacts.

Manoj Parmar

2003
• Page Hits: 7269         • Entry Date: 22 August 2003         • Last Update: 22 August 2003