Next Project

Casting that Breaks the Mould

Part 1 Project 2003
Andrew Mcmullan
Manchester School of Architecture | UK
Careful observations of the city fabric, both physical and experiential, allowed me to identify an appropriate response to a metal casting workshop.

An approach to city voids, elaborated through increasing scales, generates metallurgic characteristics of movement and hierarchical layering of scheme spaces.

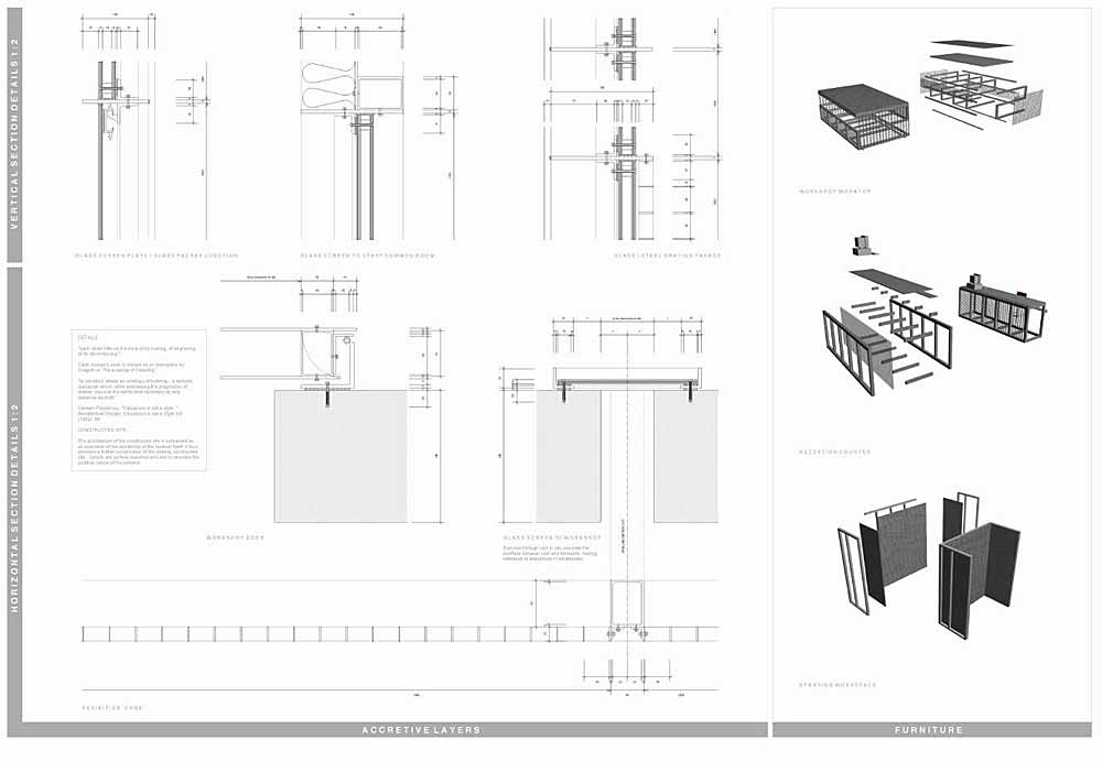
Tectonic strategies, concerned with meaning derived through one’s direct sensual engagement with the built work, make poetic reference to sequences of the casting process – exploring the interface between cast and mould.

To this end, experiential narrative is established and enables an understanding of the assembly, both of the buildings accretive fabric and the programmed workspace.



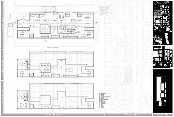
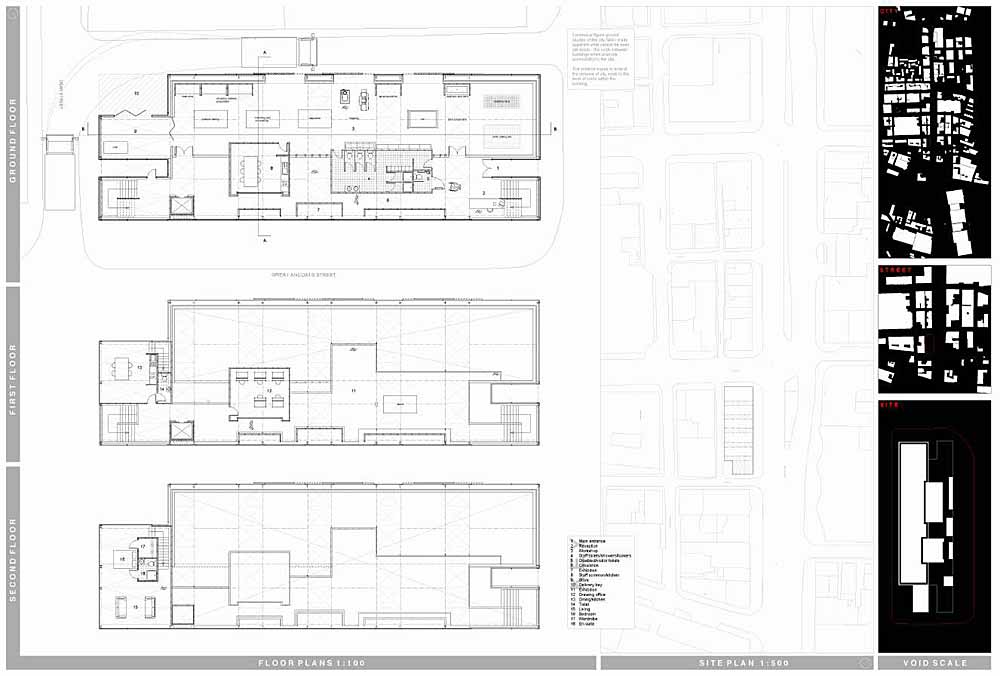
This project takes close observation of the structure and circumstances of the city to establish ways of making space.

An attitude to city void space establishes the free flow of movement and a layering of space from common areas to the principle space of a casting workshop.

A close relationship is established with the fabrication process - the casting of elemental panels, re-use of shuttering and the additive layers of building fabric.

These successive additions set up an experience of material space and enable a reading of the making processes, both of the building fabric and the programmed workspace.

The project demonstrates a focused and thorough development from initial enquiry and methodology to find the appropriate means with which to construct space.

It is unusual to find this kind of density and level of resolution in a twelve week studio programme.

2003
• Page Hits: 11297         • Entry Date: 08 September 2003         • Last Update: 17 March 2025