Next Project
Medal Winner 2004
Serjeant Award for Excellence in Drawing

Breaking the Cage (Humanising the Institution): A Secondary School on London Fields in Hackney

Part 1 Project 2004
Ulla Tervo
London Metropolitan University | UK
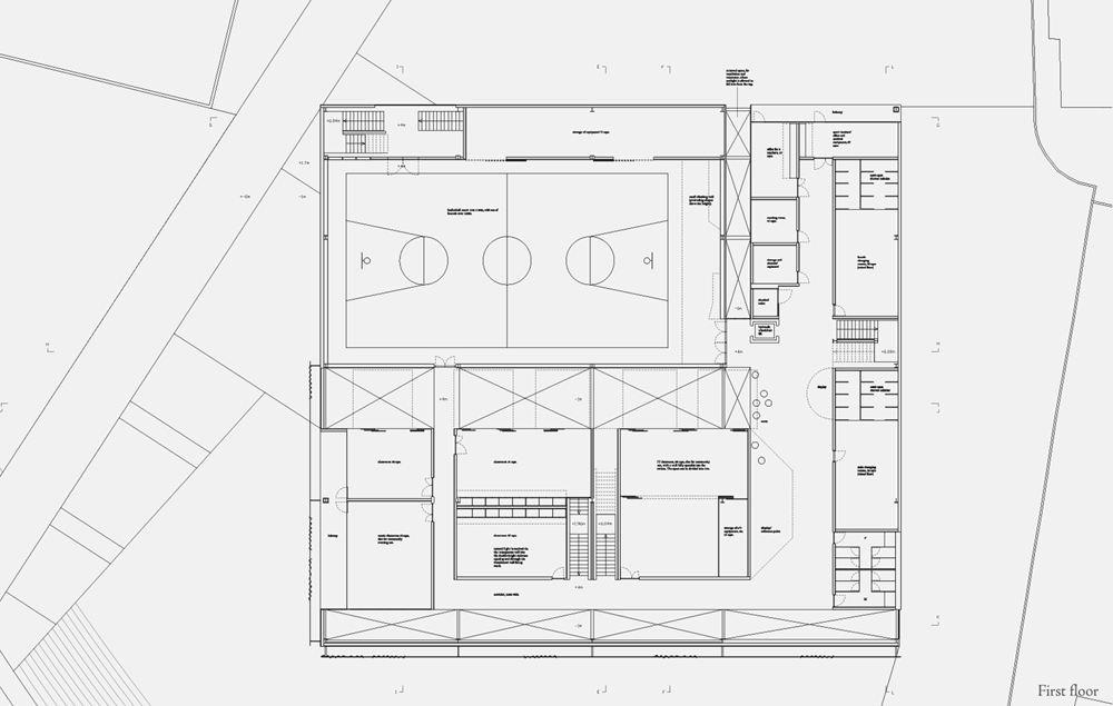
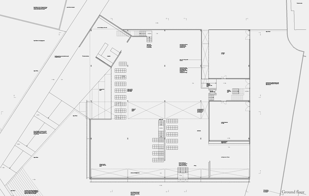
An institution, such as a school, both restricts and liberates the individual: the restrictions should be counterbalanced by providing for the individual user, and not only for the movement of masses of people. A single, deep-plan block was taken as a challenging starting point for the project of deinstitutionalising the institution or, metaphorically, of 'breaking the cage'. Specific points were proposed for achieving this, which were then formulated into a building design, and carefully thought of within the more general social and political context, as well as within the more specific context of the site on London Fields in Hackney. Two educational establishments: a secondary school and a Pupil Referral Unit were proposed to form a cluster with the existing primary school and nursery. The project consciously attempted to find a balance between the various, observed extremes: the 'institutional' and the humane; the natural and the artificial; repetition and difference; the physical reality of the park and the virtual reality of the advertisements and signs of the surrounding cityscape; hidden and revealed views; robust and delicate materials; the universal and the particular; and not least importantly, the theoretical and the practical.


The project is a design for a secondary school sited at the southern edge of London Fields, forming an educational campus in conjunction with the adjacent existing primary school and nursery. The school is conceived of as an institutional cage that is cut into analogously and physically in an attempt to humanise the environment in which children can learn and interact. Internal and external voids combine to allow for the movement of air, the modelling of light and a series of complex spatial relationships. A layered façade of glass and steel mesh curtains act as a counterpoint to the order of the overall composition.

2004
• Page Hits: 21776         • Entry Date: 05 July 2004         • Last Update: 19 November 2024