Next Project

Hotel + Spa at Torry Military Battery, Aberdeen

Part 1 Project 2004
Scott Reid
Robert Gordon University | UK
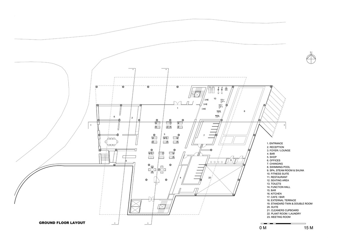
Growing out of a disused 19th century harbour defence structure, a proposed new hotel gains contrasting 360 degree views between the city of Aberdeen and the North Sea. In the design the cellular accommodation block has been elevated on “Pilotis” above the free form public spaces and adds a new expression to the site in its massing. Drawing reference from the defensive nature of the Battery, and in general from military bunkers, guest rooms offer protection. By organising a collision between the old and new structures and materials, the new architecture creates an alternative dynamic for the existing Torry Battery.


The Torry Military Battery in Aberdeen has protected the harbour and its approaches since its construction in the mid 19th century, now disused only the perimeter granite wall and gate remain. Scott Reid proposes a Hotel, Restaurant and Leisure facilities to maximise the potential of the site and its spectacular views of City and shoreline. His sensitive consideration of the existing structure and its landscaping and materials see a new structure rise from the Battery forming a lookout adding to the drama and composition of the site.

2004
• Page Hits: 16329         • Entry Date: 07 July 2004         • Last Update: 07 July 2004