Next Project

Local Magistrates Court

Part 1 Project 2004
James Stephens
University of Melbourne | Australia
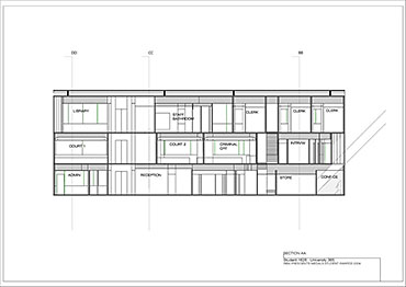
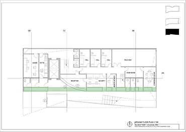
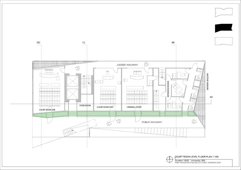
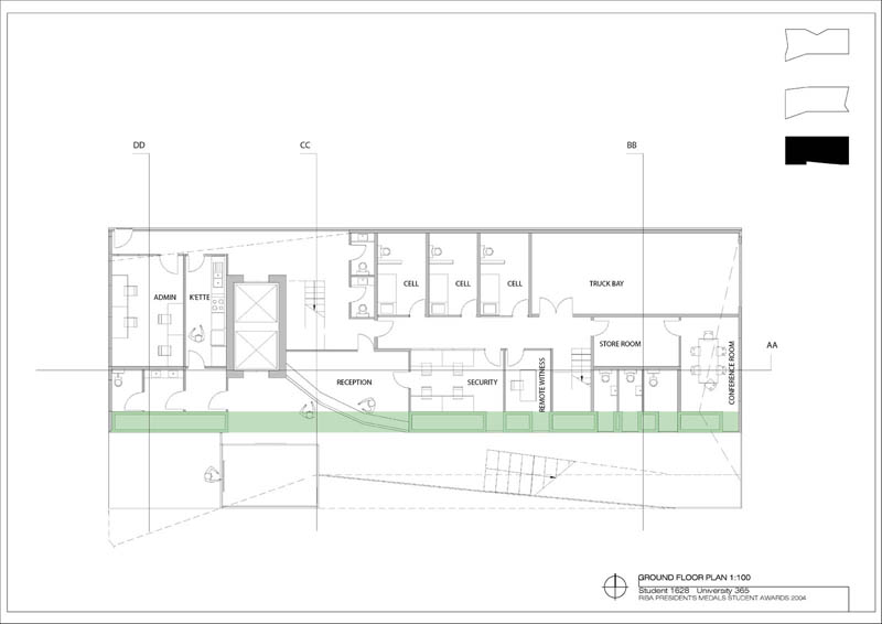
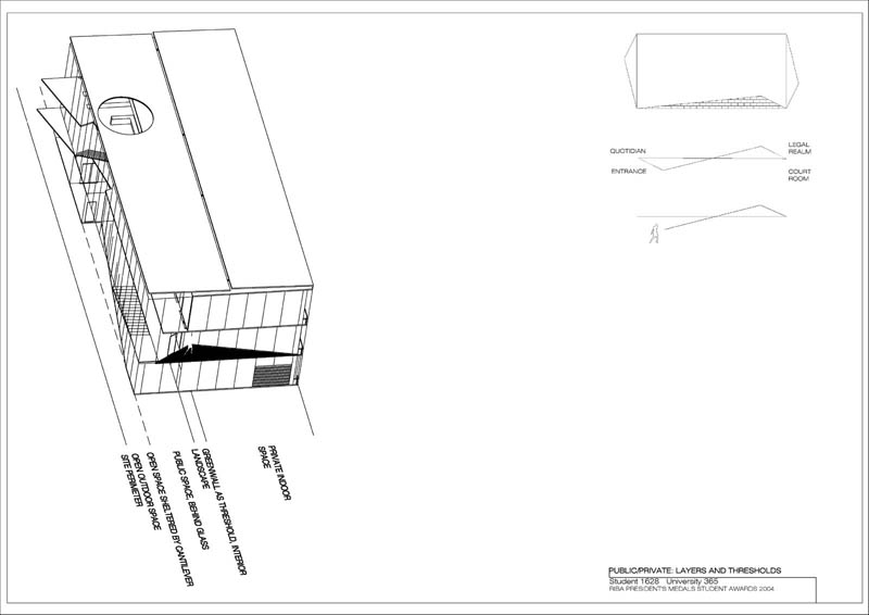
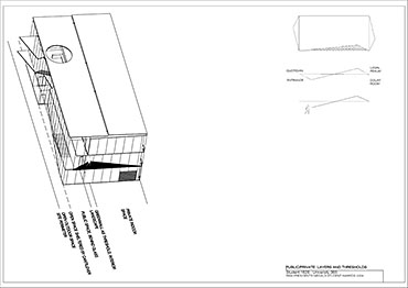
The new inner-city Magistrates’ Court faced the problem of how a civic building should represent the law in the community and how it can best be imposed over the valuable existing amenity of already scarce public parkland.

The building is conceived of as a landscape element and as a refracting prism of filtering layers. The layers or strata (like a geological sample from the site upturned) become thresholds representing the passage from the outside world into and before the realm of the courts. Reacting to the visitor’s movement, it represents a universalising order inherently unstable relative to its context.



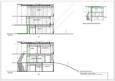
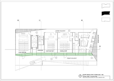
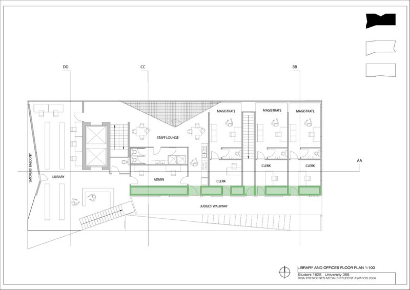
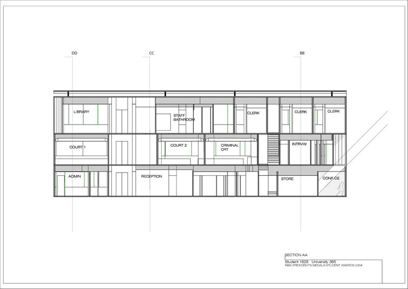
The role of an institution as a unifying social element that is also sympathetic to the needs of the individual is translated in this case into a simple geometric form with fine scale detail at places of public interaction. A long narrow box with centrally located allows for functional and efficient court spaces, while subtle shifts of skin and circulation help direct the visitors attention to the parkland setting. The relation to nature is further enhanced by the oculus above the stair, with the trace of the sun connecting our mundane forms of justice to eternal cycles of time.

2004
• Page Hits: 4040         • Entry Date: 15 September 2004         • Last Update: 15 September 2004