Next Project

Willow Power Station and Workers' Housing

Part 1 Project 2005
Joseph Mackey
University of Bath | UK
The starting point for my project was the horizontal landscape of the Somerset Levels. I was inspired by farm buildings; their desolate placement, purity of form and their slow decay.

An investigation into the unique topography, hydrology and agricultural history of the region revealed an opportunity for architectural speculation.

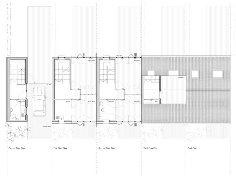
I designed a sustainable development centred on the cultivation of short rotation willow coppice. The powerstation would supply a village with carbon neutral energy and the associated housing would accommodate the potential workforce.

The design was a response to the land and the changing nature of rural life.



This was the final design studio project of Year 4. Students wrote a brief and presented its solution, the commonality being that it was near to Bristol International Airport. Joseph's proposal for a willow-powered power station using redundant farmland on the Somerset levels recognised the problems of farmland on the edge of conurbations and the sensitivity of the ecology of wetlands. It was realistic about the gentrification of villages and understood the necessity of providing employment and affordable housing together. The result is sustainable, pragmatic and poetic, dealing with the landscape, built form and suggesting a new vernacular.

2005
• Page Hits: 5802         • Entry Date: 24 June 2005         • Last Update: 24 June 2005