Next Project
Dissertation Medal Winner 2019

Ages Through the Terrace: The evolving impact of age on social and spatial relations in the home

Part 2 Dissertation 2019
Ruth Pearn
University of Westminster London | UK
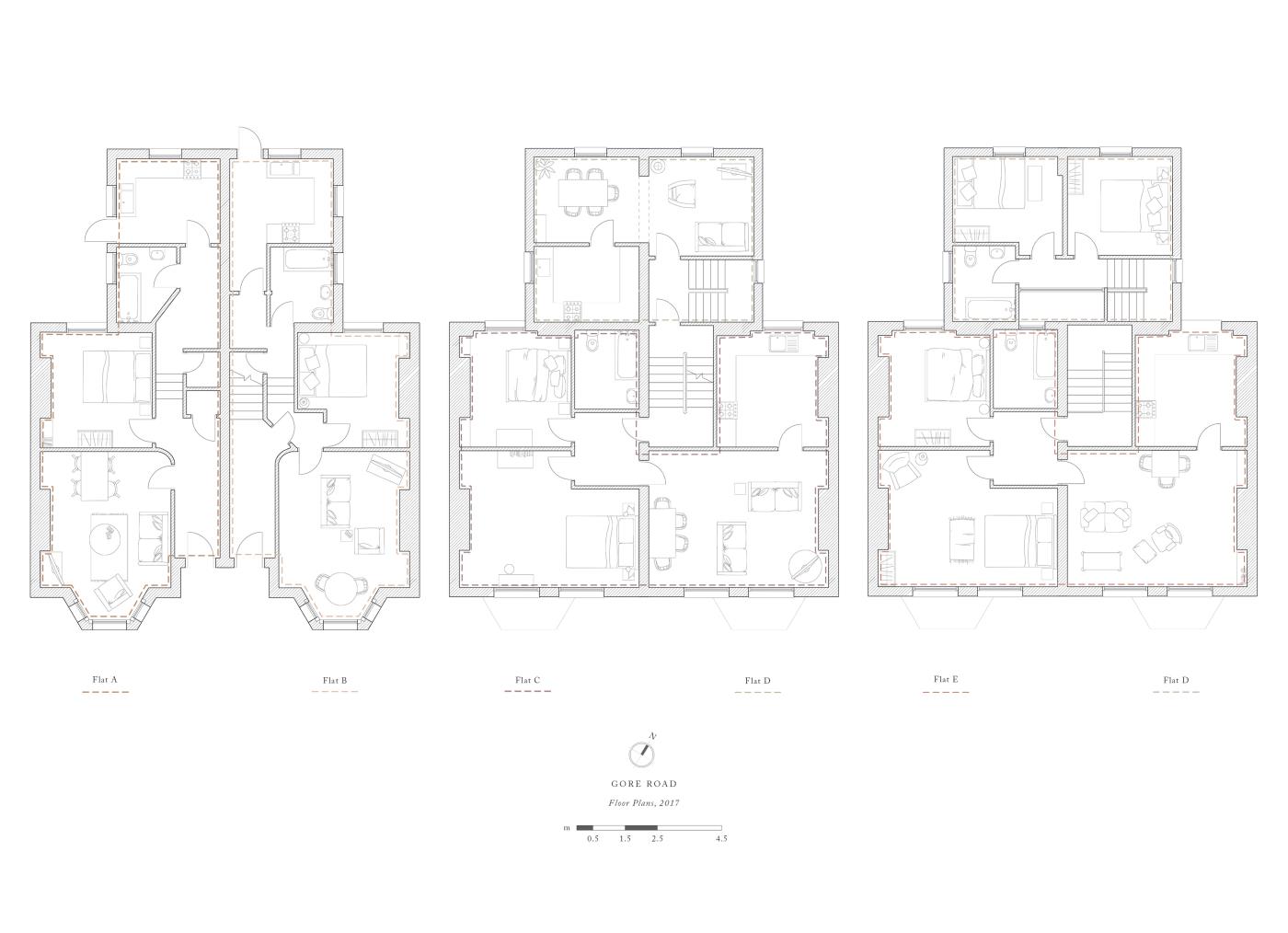
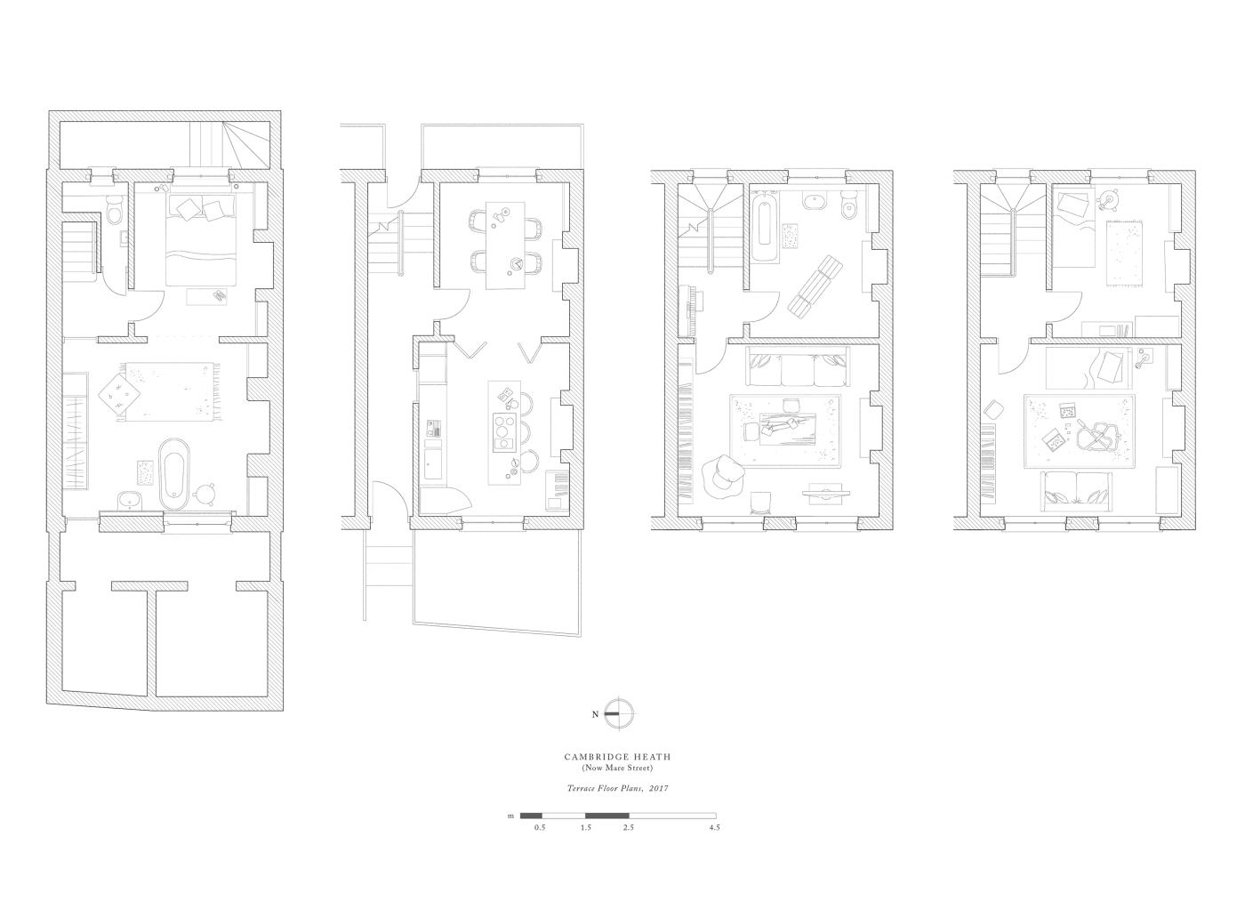
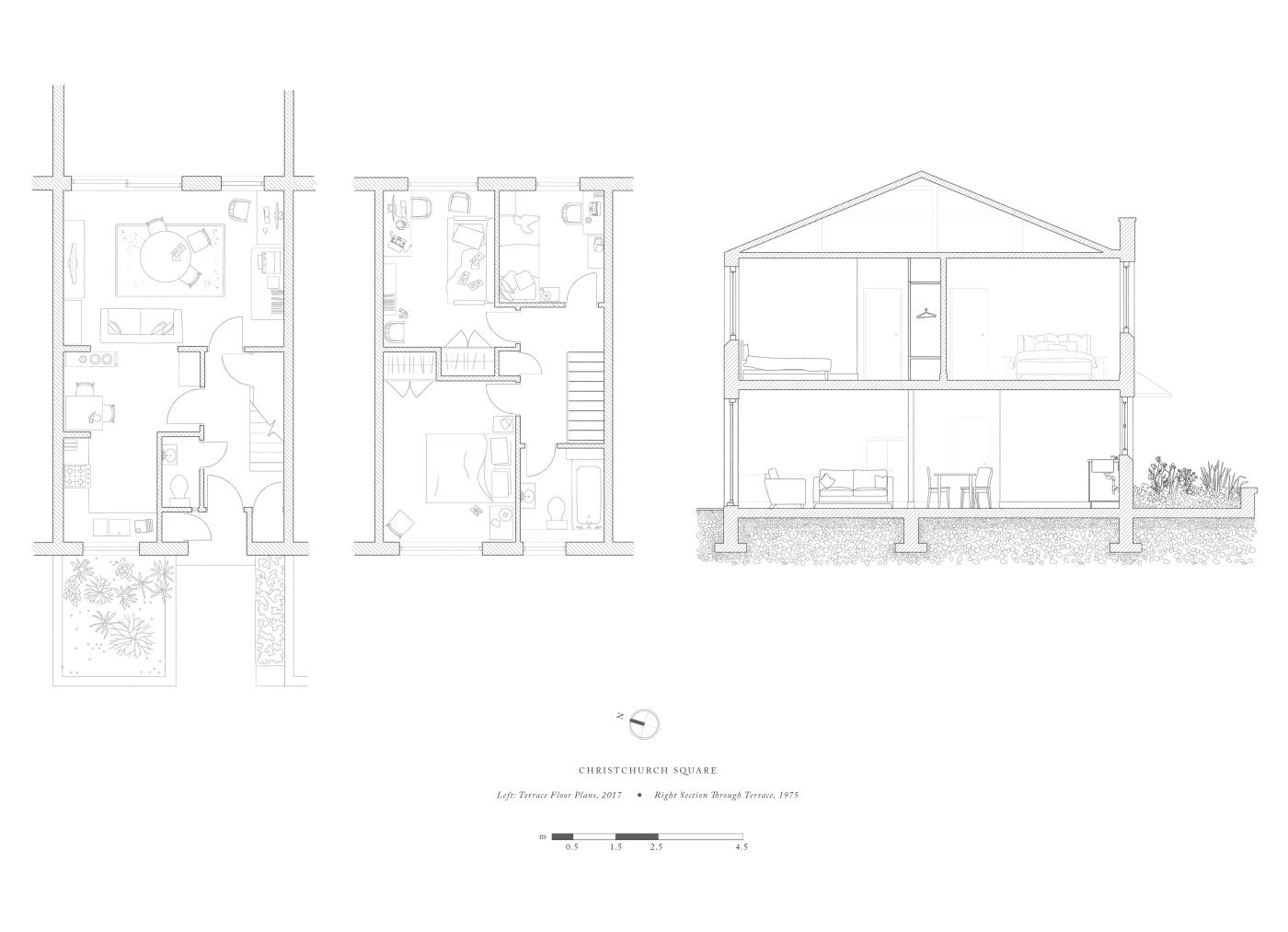
Throughout the twentieth century chronological age was increasingly utilised as a tool for organising society. As the nuclear family became established as the societal standard, the young and old began to congregate in different parts of our cities, and different parts of our country. However, with greater life expectancy, and crises in housing and care provision, today there is a resurgence in multigenerational living. In response, through three historical case studies, the dissertation analyses the intricacies of negotiating numerous generations under one roof, examining age as a basis for the organisation, use and material culture of dwellings. It studies families living in three Hackney terraces in the 1790s, 1870s and 1970s: dates that correlate with key periods when new concepts of age groups became popularised in society. The dissertation demonstrates the fluidity and subjectivity of ageing and shows how shifting ideas of childhood, youth, adulthood and old age have impacted on homemaking and domestic architecture. Finally, it looks to the future, questioning how the terrace may adapt to multigenerational living in an age when independence is no longer achieved at sixteen, decline no longer begins at sixty, and the expectations and experiences of differing age cohorts are becoming increasing blurred.

Tutor(s)
Harry Charrington
2019
• Page Hits: 16332         • Entry Date: 20 November 2019         • Last Update: 22 July 2025