Next Project

Housing in Mendoza

Part 1 Project 2005
Pablo Celis
University of Mendoza | Argentina
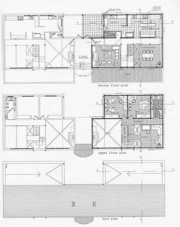
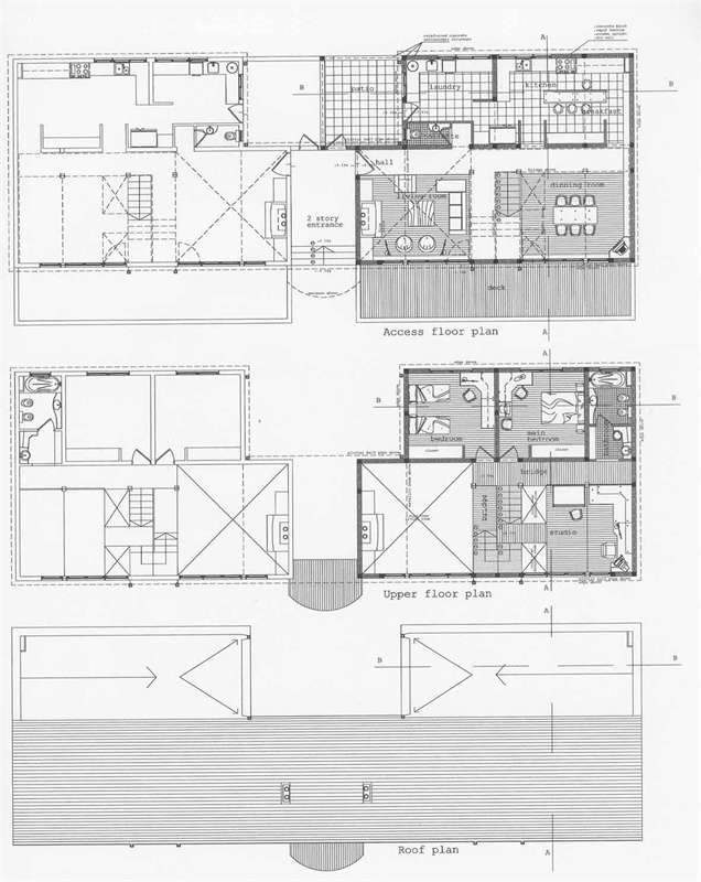
The location limits are closed with housing units with resemblance of industrial bays; inside, a space recalling a kind of switching yard, sidewalks and expansions like walkways, a steak-hut as a kind of personnel canteen and the vehicular access, railway outlet for finished products.
The whole’s image arises from a historical- critical review of the location’s earnest and constructive typologies, thus the design is charged with meanings and allegories bonding it with its environment.
Not a mere historic reference, but bringing recalls of native ambience to the present time and transmitting it to the times ahead.



With the precise aim of developing an architecture defined by important meanings, we developed a project with a view to the memory, the image and the present times; so, it’s organized in three chapters:
1 - Memory of forms and materials (old wineries, ancient railroad facilities that emerge in our cities like lighthouses, traditional brick masonry).
2 – Image, by offering a representative idea of Argentine urban culture in 2004.
3 – Times (the project considers the present times limitations and dangers), taking care of energy resources developing only a sustainable project.

2005
• Page Hits: 2947         • Entry Date: 04 July 2005         • Last Update: 04 July 2005