Next Project

CORK DOCKLANDS DEVELOPEMENT

Part 2 Project 2005
Aurelie De Smet
WENK Sint Lucas Brussels | Belgium
Located in a new district, ambitiously planned in Cock’s abandoned docklands, the new dancing school has both local and international influence and appearance.
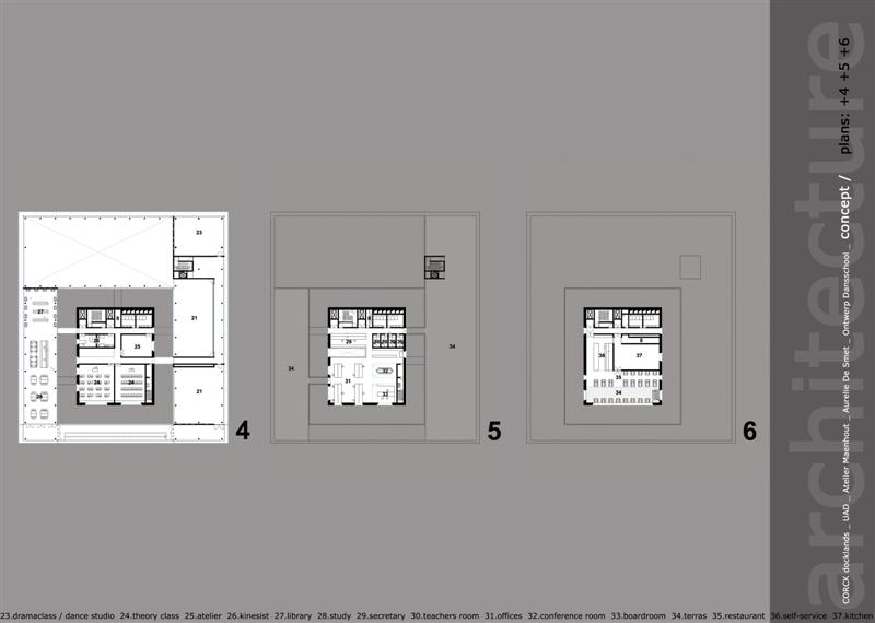
The ground floor, housing the performance hall is a truly public space. The wellness centre and fitness school are open to everybody, above, the professional dancing school is more private. The lounge provides a link between both; where ballerina and bodybuilder meet.
The opposition between dance and architecture is translated into a massive core and a transparent shell. The building seems to be floating out of balance, the slow circulation parades along the riverside façade.



A seriously argumented urban design analysis in combination with a theoretical research in the atmosphere of dance, are the foundation this project.
The solid concept was translated into a context related project, containing multiple compositional and spatial qualities. The design process was supported by an elaborate technical study and thorough detailing, to end up in an intriguing ‘promenade architecturale’. In the comprehensive graphical presentation the perception of the building is represented by the visualization of day-and-night sequences of the interior and exterior of the building in relation to its harbor environment.

2005
• Page Hits: 6282         • Entry Date: 13 July 2005         • Last Update: 13 July 2005