Next Project

Cork City Library

Part 1 Project 2006
David Healy
University College Dublin | Ireland
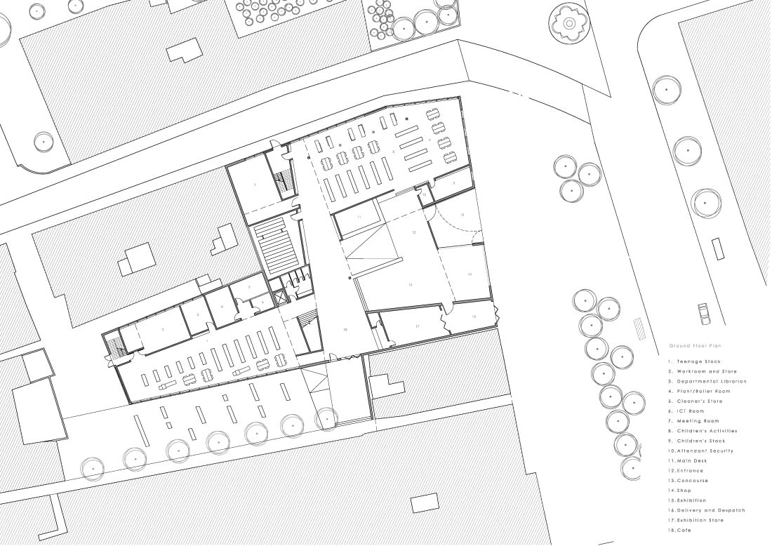
A project to replace the replace the old Cork City Library comprised two wedges emerging out of the urban corner site so as to lift the plateau of the city's centre.

As the design grew Ideas were investigated in a variety of media so that new solutions might emerge subconsciously through a change of tool.

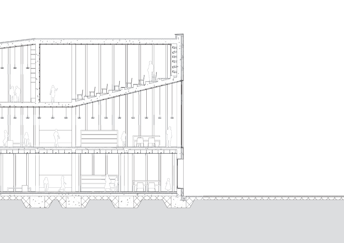
Through diagramming, iterative models and sketches a building of spatial clarity and economy was achieved.



CORK CITY LIBRARY
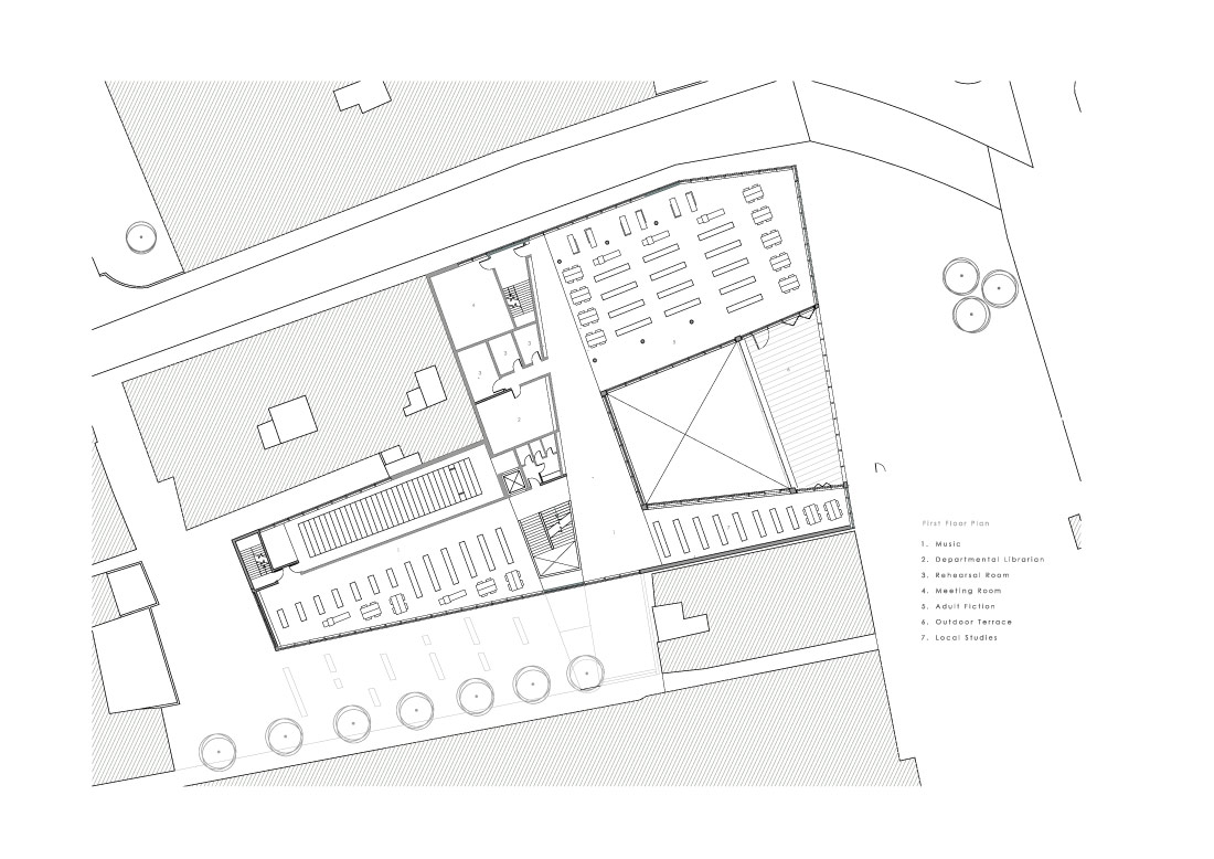
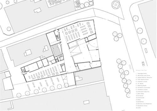
This project responds to the detailed requirements of a real brief which was developed by the Cork City Librarians’ Department for the provision of a new Central Library on their existing site at Grand Parade Cork. The project is special in how it investigates all aspects of the design in a variety of media over the course of its development. Ease of movement and interesting internal spatial arrangements were achieved while at the same satisfying the complex brief requirements of a large public library. The building has an appropriate civic presence on one of the most important urban spaces in Cork.

2006
• Page Hits: 10237         • Entry Date: 30 June 2006         • Last Update: 30 June 2006