Next Project

Mediatheque Zurich

Part 1 Project 2007
Richard Hall
De Montfort University | UK
Mediatheque Zurich is generated through a parallel process of absolute contextualisation, programmatic rationalisation and a conscious balance between protection of content and openness of public realm.
The location is one of historical prestige, epic views and a transition in density between a row of buildings adhering to a strict grid and the public space of Buerkli-Platz.
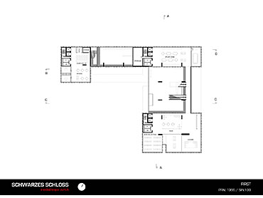
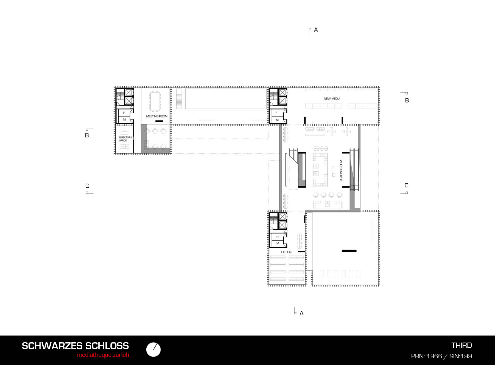
Logical programmatic consolidation and site specific considerations generated an organisation, orientation and form that maximises the site and typologies potential. The façade harmonises with surrounding buildings, while offering protection without jeopardising light and view which are essential to the success of this public building.



The recent expansion of media types, new functional and programmatic patterns, demand a never-existing spatial flexibility to achieve efficiency and sustainability of storage, accessibility and communication.

This project addresses a social and contextual topic to generate architecture reflecting functional changes and spatial demands. It considers the city - its components and the distinctions of public and semi-private realms.

The design responds to the site outstandingly, carefully considering the impacts of massing in correspondence with internal organisation.

The design plays with public spaces and inner functional relations, creating a vibrant cultural building within an urban context of complex density and connectivity.


2007
• Page Hits: 4902         • Entry Date: 28 June 2007         • Last Update: 28 June 2007