Next Project

Sustainable House

Part 1 Project 2007
Agustín Lencinas
University of Mendoza | Argentina
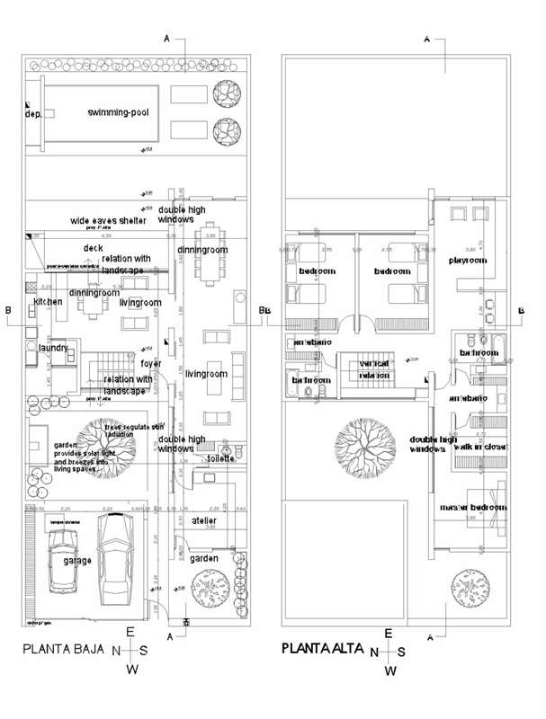
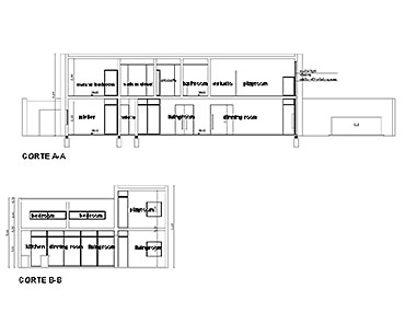
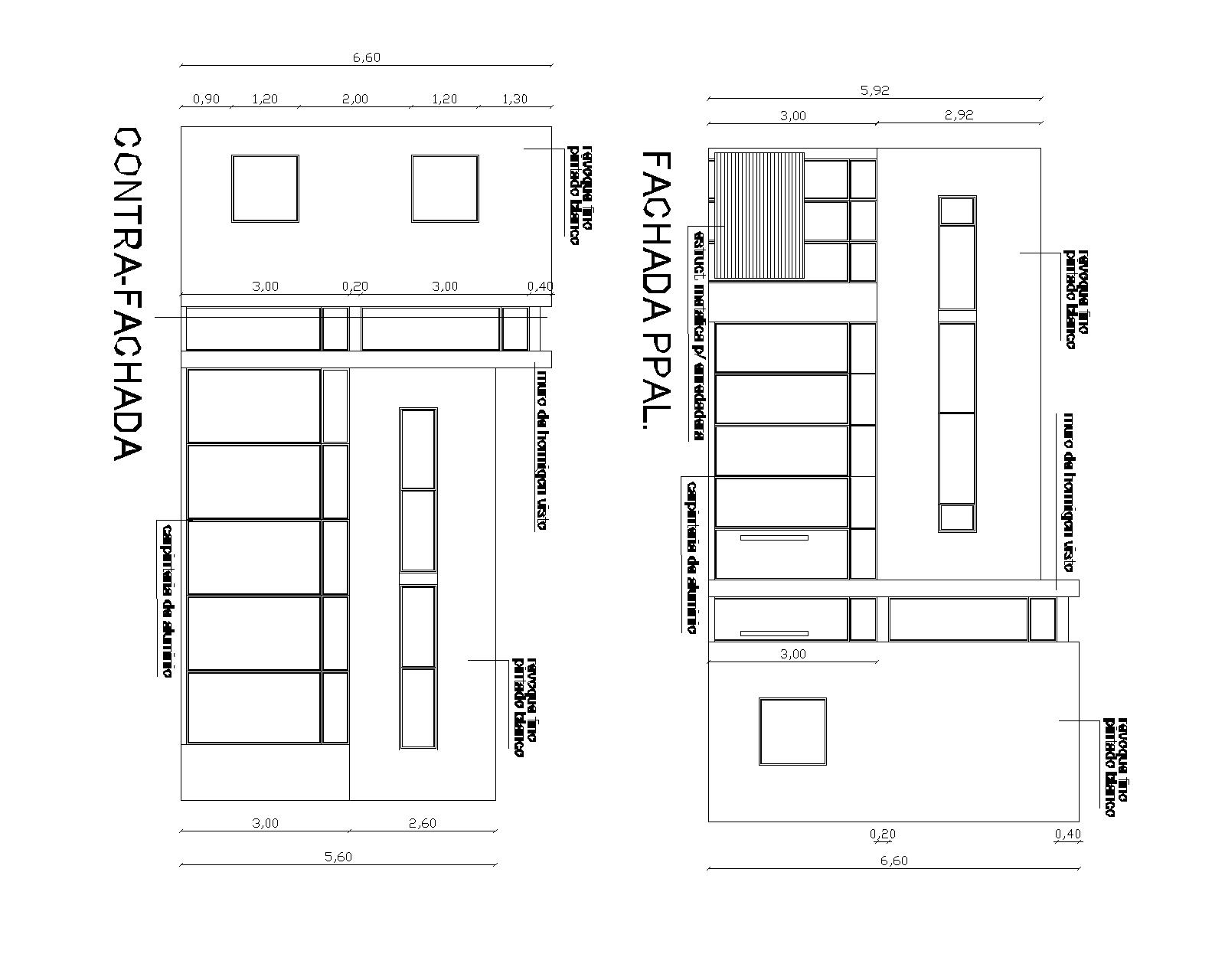
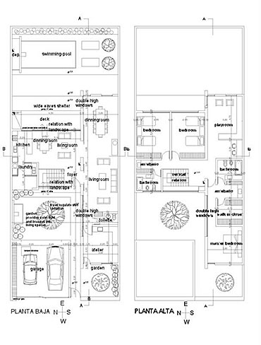
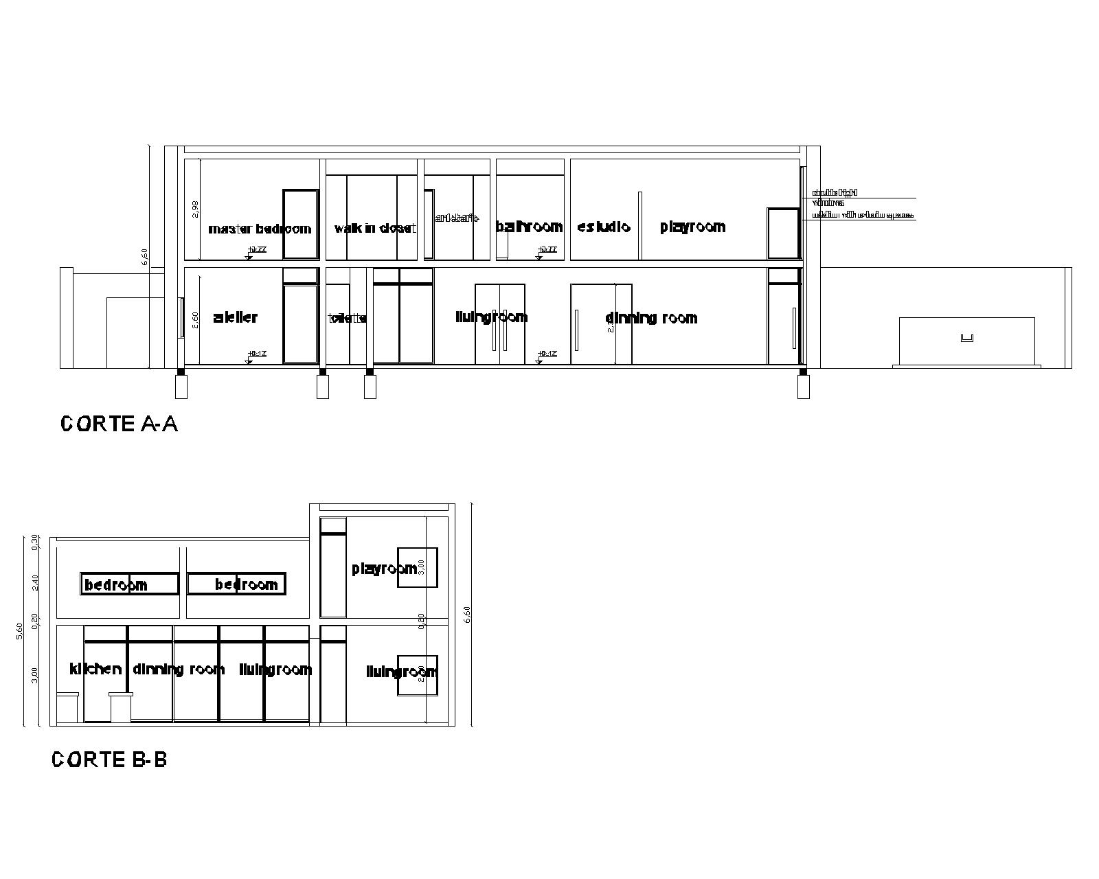
This house is located in Mendoza, Argentina. Inserted in a land of 360m2, building 309m2 divided in two levels. With good orientations east-west provides direct sun radiation. The climate of the zone is almost desert with changes of temperature.
It’s distributed in a great part of the land, oriented in their majority to the north. It has 2 small gardens front and back. They provides solar light and breezes into all living spaces, thanks to windows of double height that allow natural warming in winter and regulate in summer.The spaces are designed to take advantage of the weather.



The student has understood, by analysis, the relation between the house and its cultural context, inserted in a real place of the suburb in Mendoza, considering the close relationship between nature, location and landscape.

Particularly, he has designed the spaces of her project considering their activities, differentiating them in public and private, which are parts that configurate an architectural unit.

Finally, he has also understood the caracteristics of the inner and exterior spaces and relatinationating them, she could discover the intermediate spaces they produce, and that they are the bridge to link architecture with its landscape.


Architect Felipe Fiorentini

2007
• Page Hits: 4815         • Entry Date: 02 July 2007         • Last Update: 25 April 2025