Next Project

Wall to Wall Conglomerate Urban Mat

Part 2 Project 2008
Irene Benjumea
University of East London London | UK
This project explores the potential of Compactness and Mixed-use scheme Vs uncontrollable sprawl for the creation of new residential urban forms.
On a 1ha site in London’s Greenwich Peninsula, the project scrutinizes and tests the typology of the mat-building and the principals of conglomerate ordering: two ideas theorized by Alison and Peter Smithson in the 70’s.

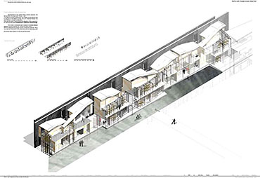
As a malleable structure of striated programmatic strips the mat formation has the ability to facilitate the adaptability of different programmatic units over time mainly through densification, subdivision and shrinkage.
The elements of the system follow a formal sequence: the Service Wall+ the Housing Units plugged into the wall + Screen Wall adapted to establish different degrees of privacy.







Once, London’s urban life gravitated around the embankments of the River Thames. Today that life has mostly disappeared allowing for a landscape of luxury apartment blocks to monopolize the riverfront producing a monoculture of dormitories.
Irene’s design of a prototypical urban community proposes a more diverse and sustainable alternative. A new form of Densification.
Her proposal argues that these low-rise & high-density structures provide the programmatic mix and a degree of metabolic autonomy that are necessary in the production of a vibrant urban community.
Irene’s proposal is projective promoting the production of new forms of urban life, challenging conventions of private and public urban space and contesting the ground versus building dichotomy.

2008
• Page Hits: 20163         • Entry Date: 14 September 2008         • Last Update: 15 September 2008