Next Project

Urban Reservoir and Museum of Water

Part 2 Project 2009
Jon Morrison
Mackintosh School of Architecture | UK
The ‘Museum of Water’ is located within the Ciutat Vella, the heart and centre of Barcelona. The urban strategy aims to reconfigure the unavailing Rambla del Raval in the form of a public territory/park/destination within the city. The building is located centrally in the expansive space to create two appropriately proportioned public spaces each with its own distinctive identity.

The Museum of water, in essence, is a reaction to the deteriorating water crisis in Catalonia, Spain. The scheme investigates a revolutionary 21st Century infrastructure for water storage, purification and distribution within dense urban centres, in this case - Barcelona. The current framework of peripheral and rural infrastructure is to be replaced by an integrated network of subterranean urban reservoirs. Essentially, conventional rural reservoirs are brought into the city. Precious freshwater is stored and protected when times are plentiful for it to be used when supply is limited. Cool fresh water can therefore be purified and distributed locally to the people of Barcelona.

The ‘Museum of Water’ has a dual purpose:

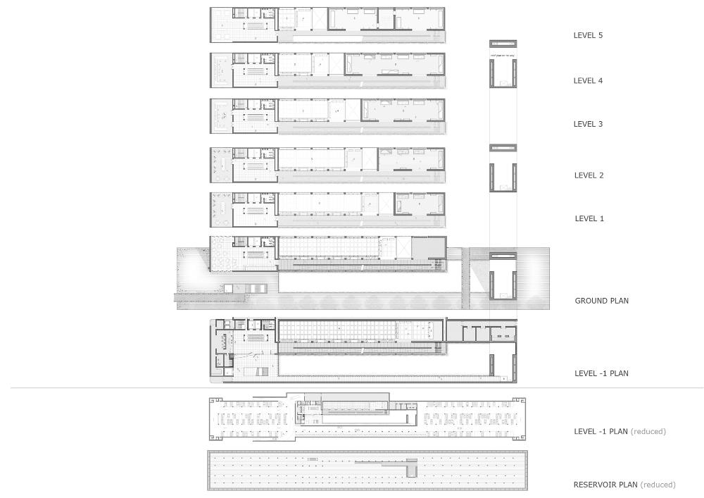
1) It is composed of subterranean reservoir, water purification plant and storage tower which rises above the city. Water is drawn from the reservoir and ascended through the building by vertically stacked Archimedes Screws to generate a sensory engagement with the purification process. Water then flows down through a series of exhibited consecutive stages, each having a specific purpose and method for purifying water. Fresh drinking water is then transferred to the tower and pressurised ready of distribution to the local community.

2) It is a cultural institution for the public with a goal to promote public awareness of the value of water and communicate the critical requirement to love and protect it. The Museum will be an exploratory environment for everyone to discover the secrets of water. The architecture explores the sensory beauty of water and investigates it as a material with which to form and characterise space: ‘the dark void of the reservoir forming the floor; cascading water forming walls and cooling the air.’



In 2008 Barcelona took the unprecedented step of importing water by ship in response to sever water shortages. This event was reported internationally and clearly demonstrates that the impact of global warming is not only a concern for the future but also for the present. In direct response to this issue Jon’s project investigates an alternative infrastructure for water storage and distribution within the city.
Building on the historic precedent of cisterns located within significant local buildings, a network of urban reservoirs and filtration plants is proposed. They are to be located beneath the city’s public spaces, and will distribute to the immediate area. This system has two direct benefits - evaporation is reduced and the potential for leakage in pipework is reduced.
The largest proposed reservoir and filtration plant within the city centre, located beneath La Nova Rambla del Raval, is further developed and combined with a Museum of Water as an exemplar project. Here water is investigated as a material with which to form and characterise space: the dark void of the reservoir forming the floor; cascading water forming walls and cooling the air. In addition, through the protrusion of two built volumes (Museum of Water and Water Storage Tank), the project successfully redefines and articulates what is presently a rather indistinct urban space.
Some students’ ambitions relate solely to architecture as built form whilst others are so concerned with the environment that they subsume their architectural ambition within an environmentally driven response. Jon’s project sets out to do both, successfully bringing the two together as a major urban contribution. It is a mature response to an important and worthy set of circumstances.

Tutor(s)
Graeme Massie
2009
• Page Hits: 18354         • Entry Date: 24 July 2009         • Last Update: 07 September 2009