Next Project

Luthiers Workshop

Part 1 Project 2009
Jonathan Mennie
Robert Gordon University | UK
The skill of the luthier is one of careful precision, delicate touch and a mastery of understanding the material. The manipulation of the wood, from rough sawn wedges through to the highly finished violins and cellos, can take a lifetime to perfect and is a craft to be respected.

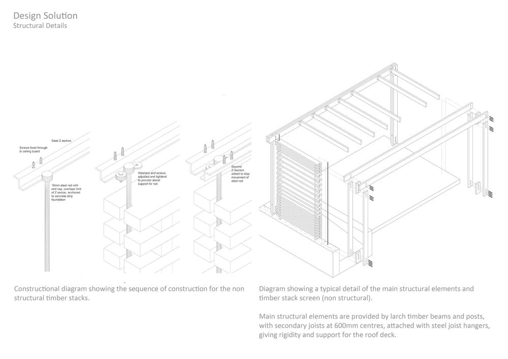
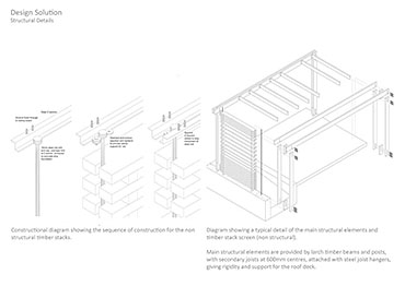
This project involved creating a work and retail space for a 3 person collaboration of violin makers from a Grade III listed sandstone coach house and back garden in St Andrews, Fife. The inner floors and walls are stripped to leave a double height space and exposed rafters into which a timber insert is placed to provide an upper minstrels gallery and retail space beneath. One wall is left unplastered, revealing the exposed inner sandstone wall. Leading from the retail space is an external corridor, leading to work and living quarters, that passes behind a screen of stacked through-and-through cut timber held in place by wires suspended from a roof overhang.

Inspiration for the extension is a direct response to the manipulation of wood and the making of violins, whereby wedges of timber are glued together and carved out.

Through-cut sections are stacked on top of one another to form “screens” between workshop and garden. The exterior face of the timber is left rough, retaining the bark and moss that existed when the timber was cut, giving the facade a raw exterior presence. The interior face is sawn, and the treatment of these stacks hint to the transition the timber makes at the hands of the luthier. The spaces created between the stacks work together with roof lights to provide a delicate illuminance to the workspace behind. Wood stores and a small residence face onto an intimate private courtyard and continue the idea of the timber stacks.

The building as a whole is sensitive to the surroundings and its scale, portraying an almost untreated natural facade to counteract the visual impact of a new build.



Year 3 Scott Sutherland School of Architecture + Built Environment

Year 3 at the Scott Sutherland School of Architecture encourages the students to think in an integrative manner about design and technology, bringing it together as the ‘Art of Building’. The academic year is divided into two semesters and two distinct projects. The first introduces the student to working with existing building fabric. They are asked to adopt a craft sensibility, an intimate reflection on anthropometrics and the interpretation of a complex brief, this year, a Luthier’s workshop and residence in St.Andrews / Scotland.

Tutor(s)
Samuel Penn
Mr Iain Ramsay
2009
• Page Hits: 8368         • Entry Date: 14 September 2009         • Last Update: 18 September 2009