Next Project

Housing Building in a Heritage disctrit in Santiago

Part 2 Project 2010
Sarah José Bosch Castro
Pontifical Catholic University of Chile Santiago | Chile
Hausing building that renew and densify a block in a heritage disctrit located in the foundational city of Santiago.
The aims of the proyect are to renew without breaking the scale, varietive and the neighborhood life of this place and to preserve the essence of the houses and patios of the traditional hauses of the place, in a reedition modernized reissue.
As main idea, the proyect focuses its value at the center of the block, where the hetitage legistations is less strict, in this way breaking-up with more release: spaces and constructions to create smaller and unique comunities areas and units, preserving the scale and living without alter the continuous extirior facade.
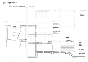
In this way the proyects have two great contrasts, the exterior shell that respects the urban continuity and the irregular and freedom of the inner side.
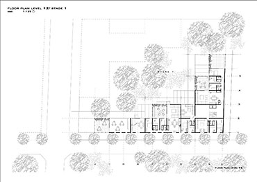
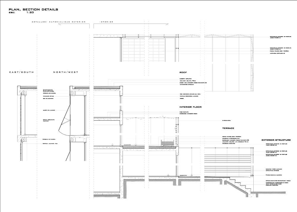
To make posible all before mentioned, it was propose a constuction that decreases the square meters as it increase in hight, in a free terraced building toward the inside of the block, so that there are create diferent hiths, airy patios, and the posibility to have gardens in the roof of lower hauses.
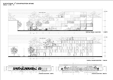
Because of the size, the proyect was design to be build in various steps. As there are include new terreins, there are new comunities and patios incorporated up to conform the total proyect.
The proyect design, used the visual extencion of the diagonals of the block, maintaining the vegetable continuity of the smaller spaces linking the diferent scales of the proect, from the department, the smaller patios to the block and urban scale with the opening of the corners of the block to the park.
Despite the continuous facade, the proyect produce a ambiguity between inside and outside, where there situations where the public space enters in to the interior of the block with small commetial square and same others, where the interior of the proyect came out of the block with large visual openings of its interior park.
The block in the present has six concervation houses that are include in the proyect planing or are adapted internally to recive commercial programs to external public.



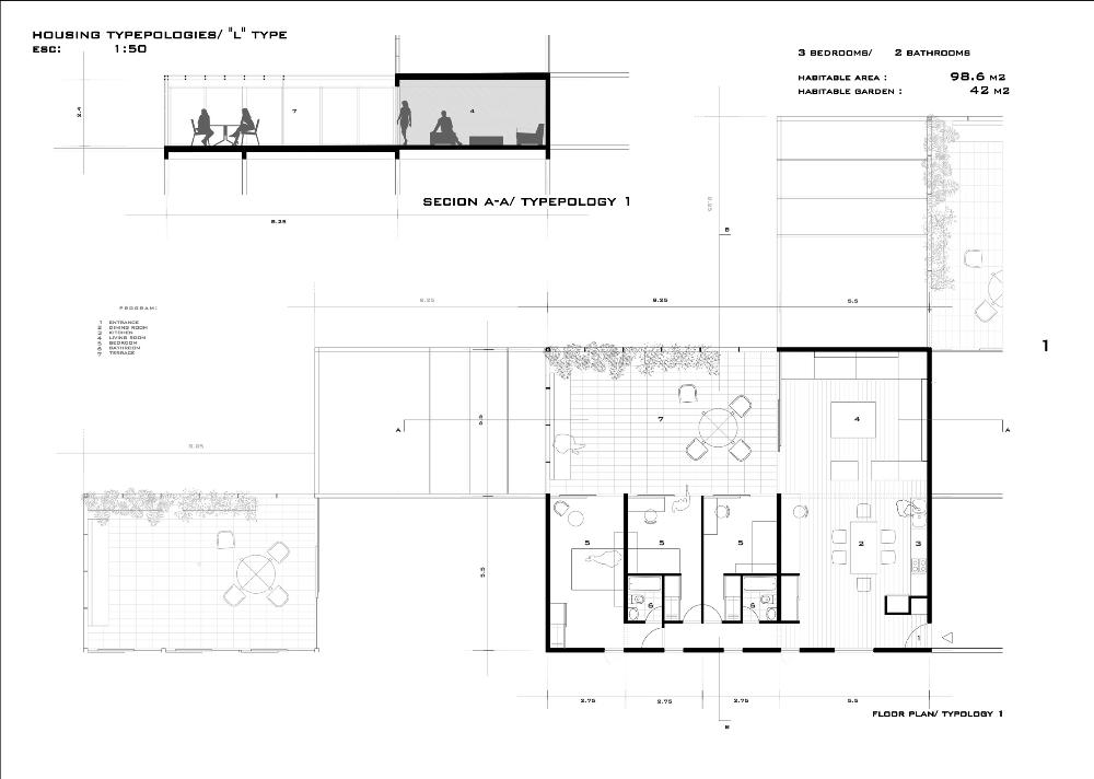
Housing building of medium height and medium density.

With this name, the degree course started the work area, with students that choose to develop a proyect with the default title to optain the degree in architecture. It was a course condition to work in the city of Santiago. Each student should go over the city and choose a neighborhood and then an exact location to work with and make a proyect in it.
From the beginning, Sarah Bosch shows a correct criterion and a serious and efficient way of working. Her selection of the place of work was quick and sure. She chooses a complete block with medium hight construction in bad conditions but in an interesting urban place for the development of a housing proyect, in the western zone of downtown of Santiago. Sarah analyzes the existing buildings of the block and observes that the terrain was compost of a weft of existing buildings empty spaces. From this, and working with the hold proyect as a unity, she develop a proyect that complete the borders of the streets and create the interior of the block with a sistem of green voids and urban path for the people of the building.
The project of Sarah consisted in reset the block with a new and contemporary language, creating a housing building that join to the existing neighborhood without breaking with the high, lines, material and colors of the place. But with a new way of living, with houses that complement the interior with the intermedia and the outdoor spaces to take advantage of the climete conditions of the city. This let us live in a semiextirior most of the year expanding the habitable area of each hause. The result was an adjusted proyect, bounded and built on the reality of the place and develop in the climet and geography of Santiago.

JOSÉ DOMINGO PEÑAFIEL
ARQUITECTO
2010.

2010
• Page Hits: 9244         • Entry Date: 14 July 2010         • Last Update: 27 September 2010