Next Project

What happens behind a blind wall?

Part 1 Project 2010
Raul Adrian Vasvari
Ion Mincu University of Architecture and Urbanism | Romania
Bucharest is a complex city with reminiscences of wide city gardens and with bold contrasts: historic buildings (18th, 19th century), communist heritage and contemporary interventions. At a first glance it is a hard-to-read, chaotic city, however, in this particularity one can find a special and unique charm, a different kind of order.
The site is located in the historic city center; therefore its character is given by a majority of old buildings. Due to a tissue-overlapping process, during the years, the area has become a fragmented one, which results in many uncovered blind walls (sidewalls). Although appalling, uncomfortable, and problematic to deal with, the blind walls are very mysterious and interesting elements, because they take the shape of the house they edge and they make one wonder what happens behind them, what is taking place in that very moment in the house.
The intervention responds to the project demands: individual house with architecture office, and to the difficulties of the given site: 2 blind walls, a major one on the entire south length of the courtyard, almost permanent shade, a historic urban tissue, a 19th century building on the north limit with monumental main facade facing our site, urban regulations.
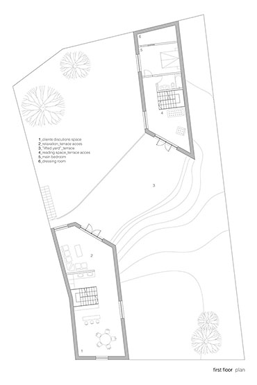
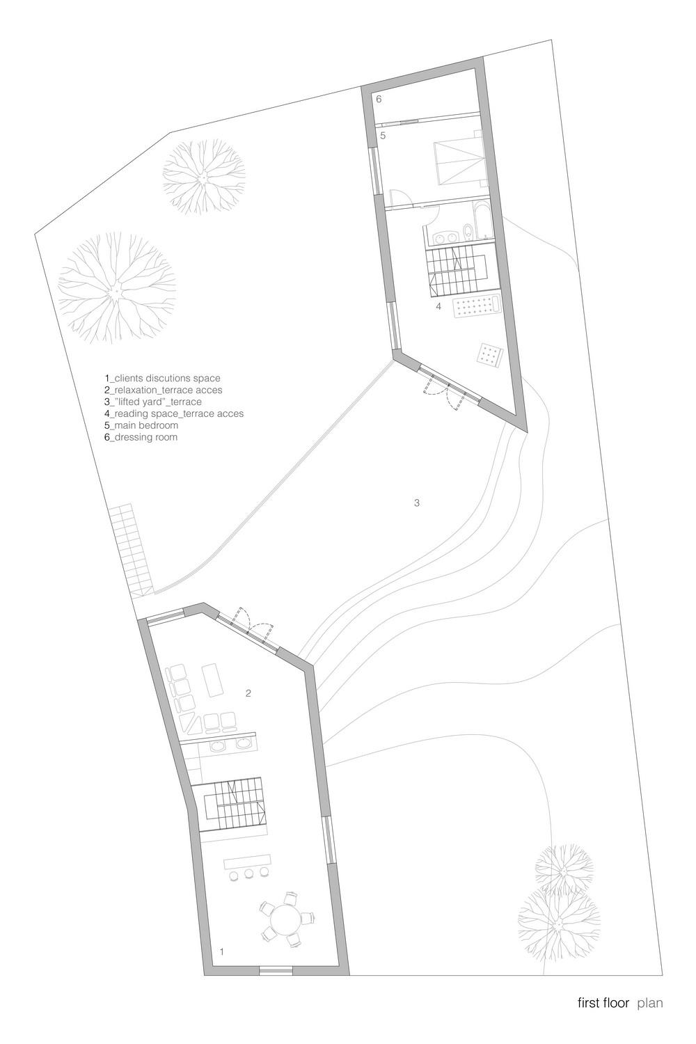
The solution consists of “healing” the blind walls with 2 distinct “monolithic” bodies. The intervention is minimal, contrasting with the brutality of the blind walls which are being healed and given life, as the new facade captures fragments and sequences of life throughout its 2/2 meters windows. The bodies are linked by the living room covered by a lifted and better illuminated courtyard.
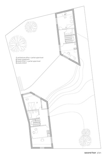
The body facing the street houses the architecture office and other semi-private functions like guestroom studio, while the second body of the house holds the master bedroom and the children’s studio. This segmented configuration of the house offers the advantage of separating the functions, creating a private courtyard in the back and a another semi-public one to the street, offering a good illumination (bedrooms, living room facing south) and is respectful to the existing typology of the urban tissue (long “wagon” houses, visual transparency, lateral entrances, etc.).



The students of the 2nd year were confronted with a challenging project, which offered them the opportunity to understand the fundamentals of dwelling. In the same time, this was one of the first interventions in a difficult urban site, in a characteristic neighborhood of Bucharest and with a challenging orientation.
The selected project attracted our attention because of its ambitious architectural vision. Contrasting with many of its colleagues, the student didn’t limit his approach to a simple response to the adjacent buildings on the street – a contextual façade and then the house behind. The selected project is actively working with the entire site, trying to understand its limits and intensities.
The house is designed as an extension of the main lateral blind wall, but also of the small one on the back of the plot. This is a fertile architectural decision, deeply respectful towards the existing urban reality. More importantly, the proposal makes use of this built mass disposal to shape the entire site, inserting a median low-rise link – the main living space. This creates two gardens, different in character and corresponding to different usages. The generous opening of the plot towards the street can be considered as a creative reinterpretation of the characteristic urban typology of Bucharest, with buildings perpendicular to the street, allowing for a deep view to the back of the plot.
Being respectful towards the urban reality of the site, the project is not devoid of conceptual strength. The treatment of its façades is significant in this regard, introducing an element of contrast with the scale and proportion of next buildings’ openings, however without making the house intrusive. The interior arrangement of spaces is equally interesting, establishing a fertile dialogue with the monolithic appearance of the building.

Tutor(s)
Prof Emil Barbu Popescu
2010
• Page Hits: 10269         • Entry Date: 23 July 2010         • Last Update: 10 September 2010