Next Project

Writing on the Wall

Part 2 Project 2010
Patrick Seurinck
WENK Sint Lucas Brussels | Belgium
Berlin was in many ways the city at the epicenter of 20th century history. After the defeat of the Nazis by the Allies, Berlin was divided. As the international tension between the communist and capitalist countries rose, the situation at the border zone became more precarious. The situation culminated in 1961, when the GDR deprived its own citizens of the right to go to the West. The Berlin Wall made a huge incision in a city already full of scars.
The sudden fall of the Wall in 1989 and the reunification of Germany in 1990 finally marked a new, more positive chapter in Berlin's history. Still, the tasks were tremendous. The tissue of the two city parts had to be reconnected with surgical precision, while the new capital was in need of political infrastructure. The most difficult and delicate task was probably to give the legacy of Berlin's history its appropriate place.
The use of 'built metaphor' in the way Berlin deals with the reunification, is particularly striking. Bridges are used as symbols for reunification. Materials like weathered and stainless steel refer to the processes of deterioration and conservation of the Wall, while glass is considered the materialization of the democratic victory. Architecture with embodied meaning as a way of giving a 'place' to the traumas of the past.

The metaphoric nature of Berlin's political and commemorating architecture was used as the starting point for the development of a masterplan for the Death Strip. Programs were generated at the crossroads of the Mauerweg trajectory, the surrounding urban tissue and the metaphoric potential of the site. The Liesenbrücken conversion – from steel ruin to bicycle track and pavillion – is exemplary of the site-specific approach. Other proposals include a pavillion on 'Wall-related art' at Humboldthafen and a project on Berlin underground culture at Bethaniendamm.

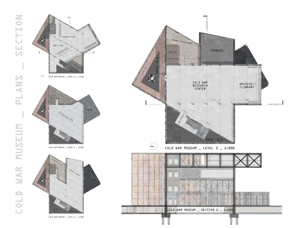
One part of the masterplan was further developed: the Cold War Museum next to the Martin Gropius Bau. The design of the museum has the ambition of bringing the use of architectural metaphor to another, more critical level.



For their Master's project, we asked the students to develop a vision on the role and potential of the former Berlin Wall area for contemporary Berlin. In a second faze, a more articulated urbanistic and architectural response was expected.

Patrick tackled the first part in a very thorough way. His 'site analysis' of the Death Strip – through visits, literature and numerous conversations with researchers and architects - culminated in an original architecture theoretical discourse on 'built' metaphor. The theory bridges the fields of linguistics and architecture criticism, and is applied with remarkable consistency across the new buildings along the 'Todesstreifen'.

The theoretical part was used as the basis for the development of a “Wall program” and an appropriate architectural response. Patrick showed great sensibility in the development of his masterplan, adding new programs to strategic locations. One of his proposals was then taken to an architectural level: the Cold War Museum. The design for the Museum integrates into the current architecture production around the Wall area, while it also takes a critical position towards it. The building works as a metaphor machine, unravelling our own prejudices about the Cold War and challenging the visitor to take a more critical and nuanced look. The metaphorical reading level is implemented both in the formal aspects of the building and in its materiality.

This theoretical approach did not result in a utopian 'paper' architecture, but produces a building that functions remarkably well as a contemporary museum. The robust and efficient structural scheme allows for flexibility, sustainability and compactness. Steel meshes evoke associations to cages, while at the same time functioning as external sunscreens or as lowered ceilings allowing for concrete core activation. There is no need for compromise between real world criteria and theoretical discourse, both are rather mutually reinforcing.

The high standards of the research and design also show in the representation of the project. The deserted, post-nuclear looking pictures are reminiscent of de Chirico, but also of the Renaissance city views that inspired him. Like the rest of the project, they bring a strong perspective to a delicate execution.

Tutor(s)
William Lievens
Corneel Cannaerts
Yves Schoonjans
Hugo Vanneste
2010
• Page Hits: 8348         • Entry Date: 08 September 2010         • Last Update: 21 September 2010