Next Project

Extreme + Connective Hub; Himalayas

Part 1 Project 2010
Karim Anwar
Arab Academy for Science, Technology & Maritime Transport - Cairo Campus | Egypt
The mountain ranges of the Himalayas, located in Central Asia, are currently the highest mountains on Earth. Though considered one of the harshest places on Earth, it is also the water source for one third of Asia's population and is therefore known as the water tower. As water on these mountains mainly exist in the form of glaciers, recent increases in climate temperatures have caused these glaciers to retreat. Taking no action to stop such retreat will eventually lead to drought, which in part will bring famine to one of the most populous continents on Earth.
My concern while designing the research hub was to create a compact research facility and expo that would deliver this exotic landscape to the world, raising awareness about this area and the impact of global warming on it. The design process was built mainly upon spatial experience, to capture the emotional impact that the landscape induces upon its viewer, thus enveloping him with emotional concern about maintaining this area in its pristine form and saving it from the ravishes of pollution.
The project was developed through experimental conceptual models to develop interior spaces of the exposition. It is through this that the visitor would experience the true essence of the landscape and journey taken.
This spatial experience is divided into three main stages, based on the emotional impact one gets from the magnificent scenery. At first the landscape is intimidating, desolated and harsh, but then as one moves through it, he touches its serene beauty, peaceful aura, and vulnerability. This flow through different feelings is a journey through knowledge of past, present and future, plus soul reaching self-serenity. The interior spaces transform from the harsh, bold lines of the exterior envelope, giving to much softer, curvaceous lines guiding the visitor to the pure, undisrupted landscape.
As one understands such beauty beyond this abstract panorama, he connects and is eager to contribute, sending a distress signal to the world to stop global warming.




Hypothetically, an environmentally active, international institute wants to build a connective hub in one of the extreme environments on earth. Here, students have the opportunity to ascend human environmental awareness.
Divergent approaches and scenarios that students adapt to attain this goal are achieved through choosing locations on earth that will best serve the concept. Distinctive features of the proposed site help students achieve their design statement. The design proposes a distinguished visual scenario for outdoor and indoor spaces and a distinctive special experience.
An off-grid building has its challenges regarding energy, power, water and waste. These issues are subdued but not neglected (maximizing benefits of the inside-out design approach), and will be dealt with comprehensively in the next design course.
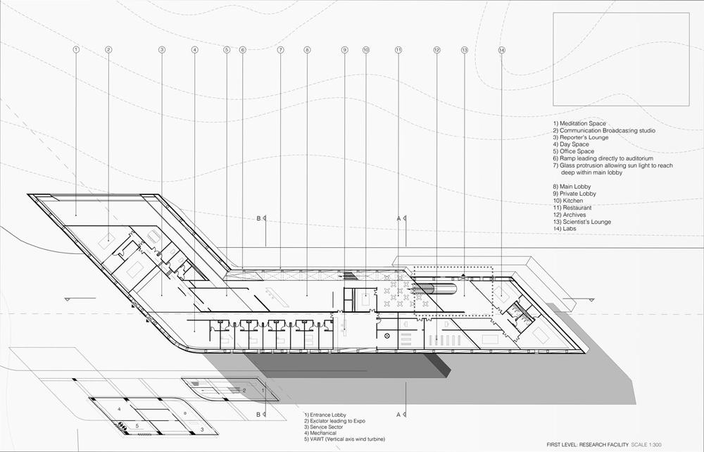
Main components:
o The Exposition spaces introduce visitors to all aspects of the environment and anthropology.
o The Research Center spaces are laboratories and scholar’s accommodation.
o The Communication spaces allow visitors and residents to interact and communicate with the world.

In the process of developing the project, students’ experience, visualize, perceive and learn to create different types of spaces, gaining deep understanding of their relationship. The exercise introduces a unique technique using physical model and photomontage method, challenging students to design from the inside-out. Students design the attained special experience, then building form, with appreciation to the visual experience whilst learning that architectural space is a tool in materializing environmental/human issues, whilst housing it expressively and undyingly. Furthermore, students learn ergonomics/human factors and how our environment conforms to needs, dimensions and dynamic range in spaces.
Karim Anwar chooses the mountain range of the Himalayas. He confirmed deep understanding of the unsullied, extreme environmental context. Through building a series of experimental physical models and using photomontage technique, his ability to accurately design every area of the project in relation to the other, whilst ensuring all spaces possessed what were needed for their intended purpose was exceptional. I consider his project a prototype for an inside-out design approach. Karim’s project also reflects development of new problem solving techniques and first-rate presentation capabilities, which reflect the purity and spirit of nature.


Tutor(s)
Dr Ayman Wanas
2010
• Page Hits: 9820         • Entry Date: 08 September 2010         • Last Update: 13 September 2010