Next Project

Mechanisms to the Machine: MECHO6 (de) Construction Skills Centre

Part 2 Project 2011
Anthony Hobbs
University of Plymouth | UK
‘We are a process man, not a static thing’. Fuller, B. The Buckminster Fuller Reader, 1970

Enter the city of Gdansk, Poland; a post-industrial metaphorical machine, operating a series of methodological terrains upon which you, its inhabitants are the interconnected parts and devices functioning the program of life. Within this process system of ongoing change, there are political rules, tactics and strategies in motion that structure ‘us’; we are then the revolutionary mechanisms to the machine. The proposal of MECH06 (de)Construction Skills Centre critically assess’ the ideologies of ‘building’ within the city, challenging ‘fixed’ static architecture and communicating that nothing is ever fixed, change is always possible. A flexible, reactive architecture that responds to change.

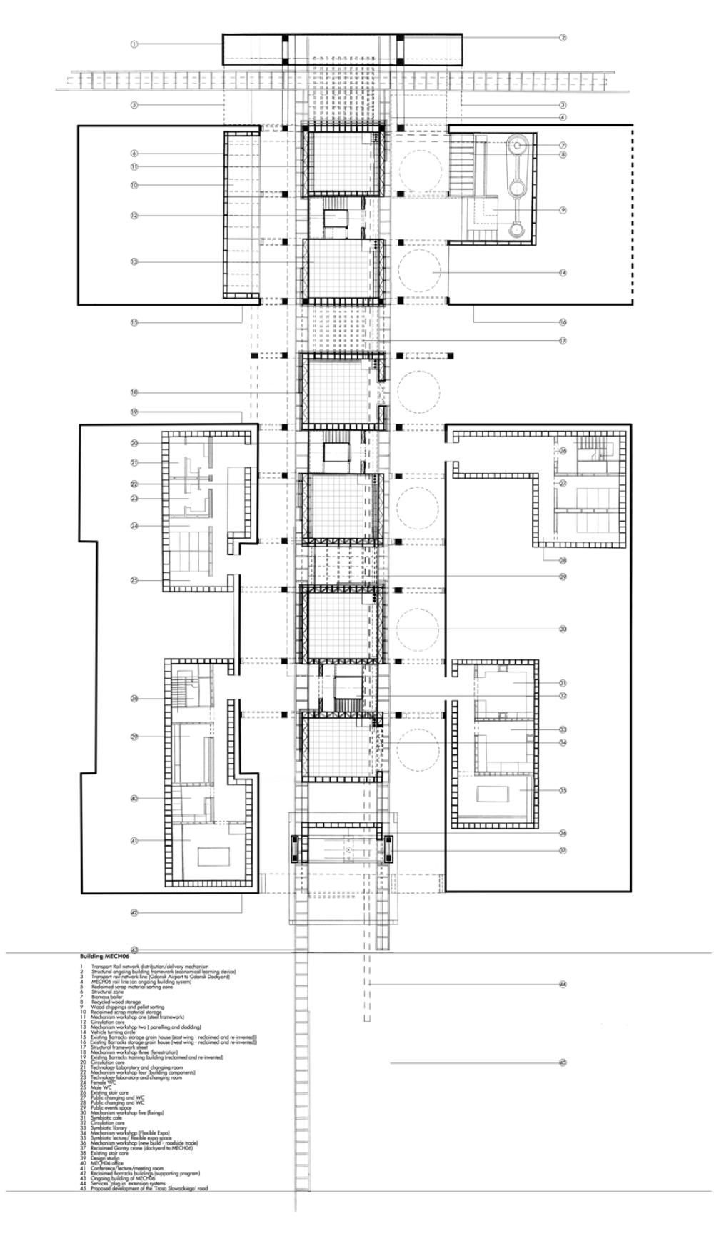
A redundant workforce re-ignited in their trade, local skills and knowledge of an inherent culture of (de)constructing redundant ships and automotives, re-established and re-programmed for production stages throughout the city. A linear series of interconnected workshops, experimenting with the craft and re-use of recyclable, reclaimable resource from the landscape and Gdansk dockyard: steel. Located within the Barracks site, a redundant post-industrial training centre, once a military training base, now (re)invented into MECH06, a robust shifting landscape of radical training and ongoing education. Everyday people learning the cultural skills of (de)constructing steel; a process ‘plays with pragmatism’.

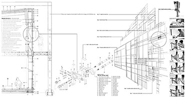
Through a participatory role in architecture and an adaptable ‘kit of parts’, the workshops encourage workers, students and the everyday citizen to explore, create, play and (re)invent new ways of flexibility in a radical participatory means. Embracing robustly the DIY initiative to building, a simple economical, ecological user-friendly means of ‘get up and go’ architecture; a standardized craft of building the workshops and (de)Constructing building components to be choreographed to the ‘building’ seasons and provide an understanding of ‘how a building is put together’.

The Role of the architect as the craftsman; offering feedback, evaluation and learning as to progress from mistakes, faults and unexpected risks upon a terrain that undergoes challenges of climate change, economic fluxations, political revolution and social rebuilding. Change is inevitable and we must design and in accordance to such a means.¬¬¬¬¬


Tutor(s)
Dr. Krzysztof Nawratek
2011
• Page Hits: 9043         • Entry Date: 09 September 2011         • Last Update: 09 September 2011