Next Project

A Picturesque Cityscape

Part 1 Project 2011
Christopher Bisset
University of Liverpool | UK
A project to explore how an under-used, derelict city centre site can be re-invented for a successful, dynamic future. The site, caught at the confluence of the decaying industrial warehouses and factories of the rope walks and the garish boudoir of the retail area which chokes the heart of the city, the business district stands as an oasis in the city; proud and marvellous architecture preserved from what seemed a better world, but eerily quiet, the mighty headquarters of a trans-Atlantic trade long gone, left empty, too precious to subject to the drudgery of modern office life.

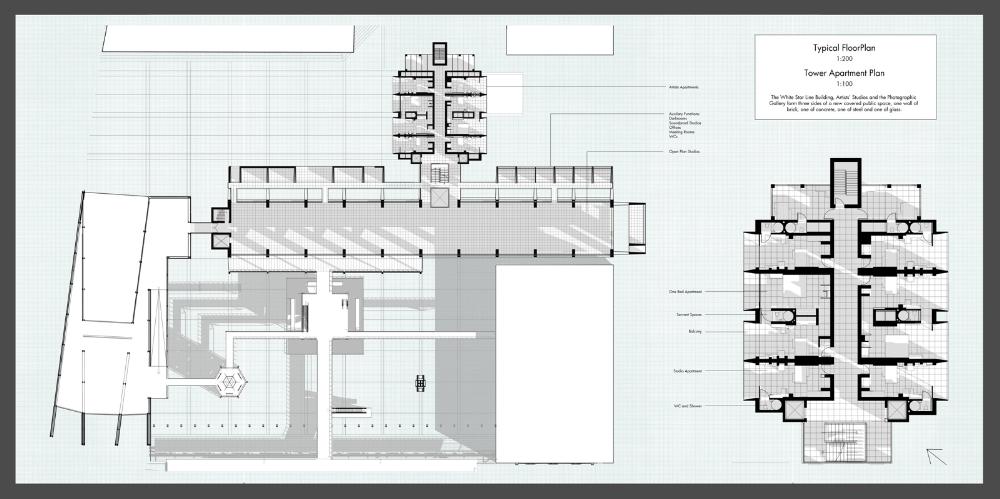
The opportunity to remove disused 1960s council offices in favour of a vibrant, dynamic transport interchange, photographic gallery and studio and apartment spaces for creative professionals will breathe new life to the stagnant streets of the city.

Arranging these varying functions into contrasting, fundamental forms of block, tower and square highlights to the passer-by the unique and diverse human interactions taking place behind their walls.


Tutor(s)
James Jones
Jane Moscardini
2011
• Page Hits: 8130         • Entry Date: 14 September 2011         • Last Update: 14 September 2011