Next Project

The Leith Foyer, An Urban Sanctuary.

Part 1 Project 2011
James Hunt
Edinburgh College of Art | UK
The Foyer

The location for The Foyer project is in the heart of Leith, the port and aging industrial hub of Edinburgh. It is a melting pot of cultures, attitudes and livelihoods where the successful and comfortable live alongside society’s lost and rejected.

The Foyer project provides an integrated centre of secure housing, support and training for those lost young people. The design’s intention is to offer a home-like sanctuary alongside educational opportunities that develop new confidence and community involvement.

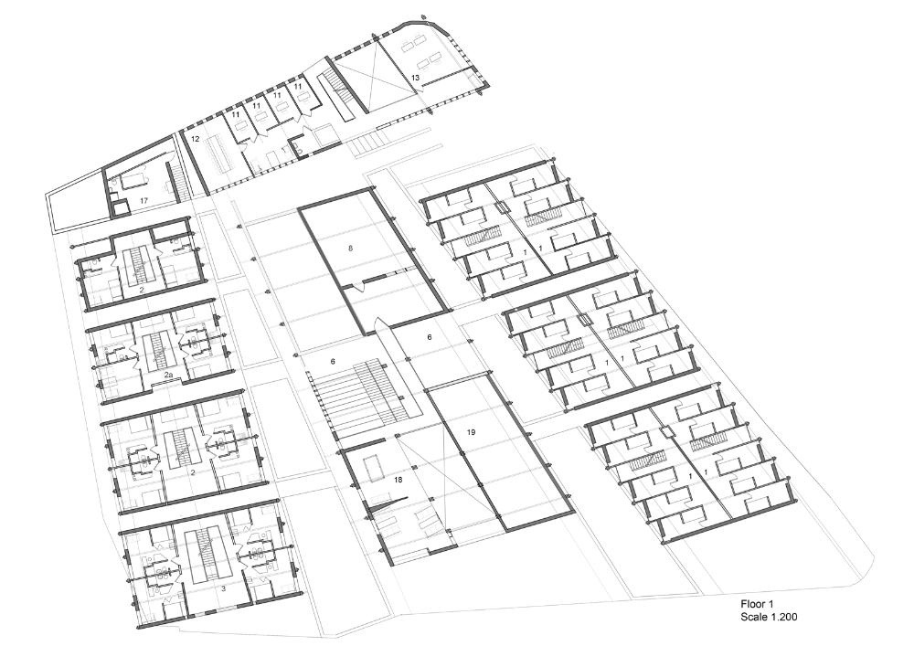
Architecturally, two parallel streets running north-south become the main circulation space within the complex, each subtly terraced towards the river. Communal, educational and social spaces run through the central finger while accommodation facilities flank it to the east and west. This layout is of a domestic scale and consistent with the pursuit of a village like environment,. . Personal rooms are clustered within individual buildings, providing a private sanctuary and home for residents


The project looks at how architecture can be a catalyst for social cohesion through facilitating subtle but constant occupational therapy for those disenfranchised within the community. The Foyer’s Terraced streets are designed to channel natural and residential water flow into tranquil wetland habitats indigenous to Scotland. . These are managed by the residents giving them a sense of worth, purpose and belonging. The skills learnt give residents an opportunity to manage habitats along the waters of Leith helping to improve social links between The Foyer and the local community.

Environmentally the buildings are designed to minimise waste and power consumption and use local building materials where possible. The Wetland habitats act as a natural and sophisticated treatment system for the building’s grey water and low grade Scottish Larch is specified for the engineered timber structure – a renewable and often overlooked building resource. Passive ventilation and solar water panels are utilised as a low energy solution to comfortable internal environments.




Tutor(s)
Mr Mark Walker
2011
• Page Hits: 6573         • Entry Date: 15 September 2011         • Last Update: 15 September 2011