Next Project

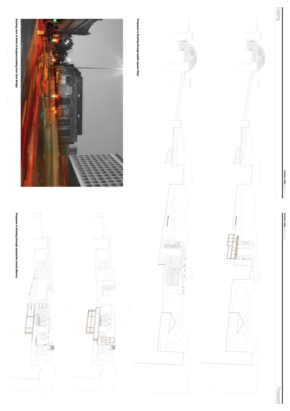
The Ruins of the Bank of England

Part 2 Project 2011
James Lonfield
Newcastle University | UK
Extracts from “From riches to rags” article in Financial Times 6th June 2011

Simon Warwick-Chang has recently caused waves by breaking out of the financial rat race to open a unique social venture in the heart of Newcastle upon Tyne. In a complete lifestyle change he has left the now maligned excesses of the banking industry in response to the public expression of anger and is setting the scene for others to do the same...

... In 2009, he took early retirement to devote his time to social work. We caught up with him to discuss the impact of his new 21st century monastery housed in the ‘Ruins of the Bank of England” ...

... “I had never considered the North of England before, but as the full depth of the recession started to become apparent I noticed the North being frequently mentioned as a place that was suffering from the economic slowdown” ...

... “Having moved it soon became apparent that there is little overlap or accountability between charities despite a high number of clients using more than one charity at a time. I thought about a new approach to social work that drew multiple charities together to streamline operations” ...

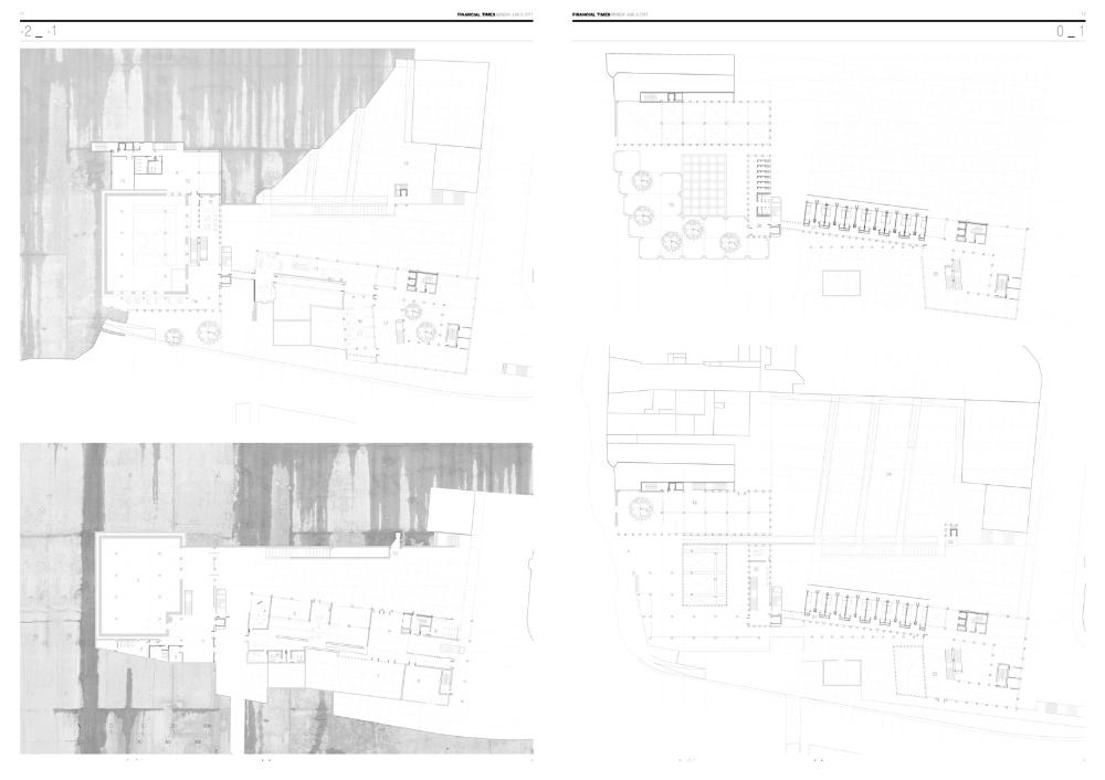
... “Working with 6 key charities as well as the Hub movement we developed plans for a building that combined shared office facilities for individual charities with multi use workshops, exhibition spaces, art studios. The idea was that combined charities could fund more facilities that apart and the multiplication of activity would lead to a greater momentum for the work” ...

... The bankers monastery is a residential CRP where bankers stay while volunteering at the charities giving financial advice, teaching english, growing allotments etc. The programme gives bankers a completely new, and sometimes uncomfortable relation with the public breaking down boundaries created by all the trappings of class, education, wealth, etc ...

... “The personal impact of such a hands on approach to philanthropy can not be replicated by monetary giving” ...


Tutor(s)
Graham Farmer
2011
• Page Hits: 9512         • Entry Date: 15 September 2011         • Last Update: 15 September 2011