Next Project

HOME OF NICANOR PARRA IN

Part 2 Project 1998
Francisca Vergara Moreno
Pontifical Catholic University of Chile Santiago | Chile
LIBRARY - HOME OF NICANOR PARRA IN THE RUINS OF CASTILLO NEGRO


Ruins or remains of an abandoned construction?


The ruins of Castillo Negro are not historical pieces, nor are they a collective memory of a coastal resort that has also been abandoned. They are a previous construction, which has stubbornly resisted the destruction of time.


The reason for using them is that they exist, and are part of an established structure: Las Cruces, a town with stone foundation, where the project site is fragmented into a total unit, and where the total unit consists of two stone constants: walls and staircases.


I submit this project, understanding that continuity comes from the structure of the city from which the constructed form emerged and, this insofar as I manipulate and adapt the forms which I recognise.


I only retain the void evoked by the form of the past, and accept that the site already has its own geometry and needs no other.


The first image of the project attempts to integrate a new route, which then creates a second scene: the town, which has been arrested in time, will not disappear.


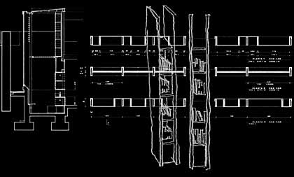
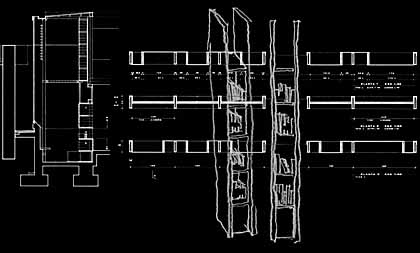
It is the construction of a staircase, which links the first plane/foreground, with the third; the project unfolds around it, the books contain its length.


Home- Library- Home?


The peculiar feature of a private Library is that its Librarian inhabits it, between the books, the reading spots are those that bring living and writing together.


Reading must be facilitated in a variety of places throughout the building, since this is a daily place. The problem is to design a home within a Library where the latest book is still on the bedside table.



LIBRARY - HOME OF NICANOR PARRA IN THE RUINS OF CASTILLO NEGRO


The commissioning of the project emerged from the interest expressed by the so-called Chilean "Antipoet" Nlcanor Parra, to recover a castle of the early part of this century which he owns in Las Cruces, along the central Chilean coast. The castle was burnt down some years ago and its sole remains consist in a sketchy outline of stone remains, a contention wall, some pillars and staircases.


The full rehabilitation of the place will attempt - by means of architectonic action giving way to a new use - to become the poet's permanent residence and his private library.


The importance of Nicanor Parra for the project resides primarily in the "Internal Equation of the Library", which is the order and distribution which he assigned to his books and which becomes an architectural project as its submits an interior and an order problem.


Both the topic itself "Overlapping Architectures", as well as the personal rapport that the student has established with the poet, give a transcendent character of Parra, his posture confronting the topic of the library / the book, and the architect's interpretation of this entire situation.


Architectonically, the project constitutes a creative process that uncovers a universe of relationships, elements, atmospheres and spatial conditioning related to the geographical location, the composition of stone elements, and the singular character of the client.


The project finally assuming a constructive matter, by building architecture with clear concepts and rigorous details. The materiality is the result of the design of detail and corners that define almost obsessively the perimeter of the building, achieving an adequate illumination, rich in quality for reading and writing as it dimensions the distance that communicates and projects the books from humidity.

1998
• Page Hits: 5774         • Entry Date: 08 January 1998         • Last Update: 10 May 2001