Next Project

Fragments of Trieste

Part 1 Project 2011
William Sinclair
Cardiff University | UK
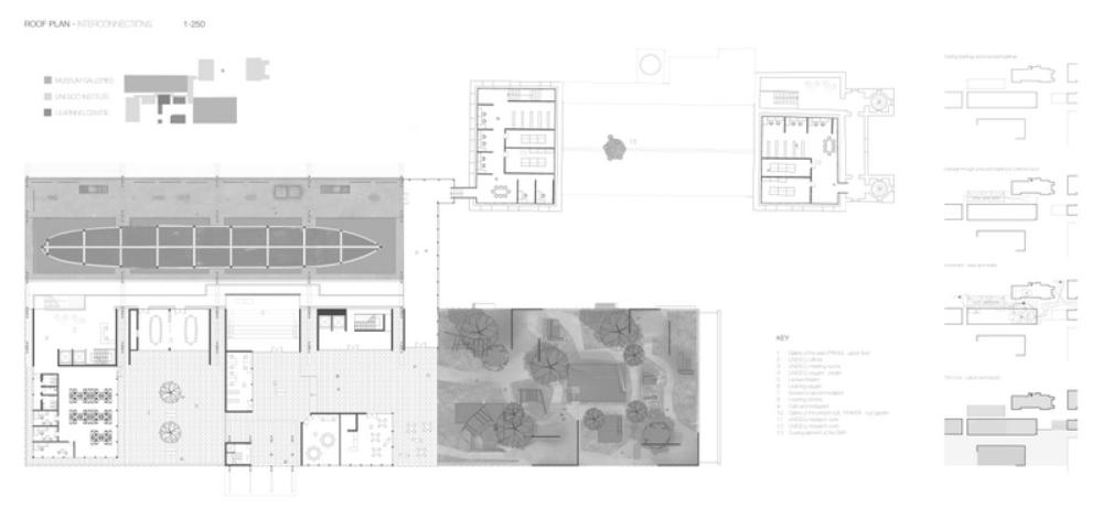
This project, set in Trieste, Italy, is at once a memory field and an exploration into future forms of energy. It integrates the ghosts and remains of Trieste’s industrial heritage into the architectural fabric of a museum and an institute for energy research. The programme is set to present an architectural timeline of the port of Trieste in three galleries (the Old, the Present and the Future) where historical elements form the architectural fabric of the galleries and provide each space with their own atmospheric energy. A UNESCO institute forms the control as well as the protection for the site, and advanced technologies to harness energy are exposed as functional and symbolic within the museum’s narrative.

The inauguration of the Port of Trieste was to be found in the heyday of the Habsburg Empire, a kingdom exemplified by a thirst for power and influence. This ‘old’ Trieste is symbolised by the Steam Ship Primo, which dominates the gallery. This 75-metre beacon of the Empire is presented as it would have been, sunken to its plimsoll line in recreation of its functioning self.

Trieste’s present-day existence is characterised by the multi-billion pound oil industry; but do the ever-shrinking supplies of this commodity render its foundations unstable? Using the skeletal remains of an oil tanker to produce a structural graveyard that supports the roof of a functioning dockland building. The top level of the gallery is left open to the elements, creating an un-obscured connection to the surrounding docklands.

The ‘Future’ Trieste takes the form of a Nuclear Power Station. This power source contains an element that seeks future progress but is housed in the past. The Small Modular Reactor is integrated into the shell of the Habsburg Power Station, a ghost of Trieste’s industrial heritage.

‘The museums which have the greatest grip on the popular imagination are not those which are most modern and systematic, but often those which are most disorderly and individual…. The experience in these places is not of history, ordered and systematic, but of memory, provocative and strange.’ Charles Smith ‘Museum as Memory Bank’


Tutor(s)
Sergio Pineda
2011
• Page Hits: 6637         • Entry Date: 15 September 2011         • Last Update: 15 September 2011