Next Project

The Periphery Club: Making Knowledge in the City of Collective Memory

Part 2 Project 2011
Jonathan Loewen
Dublin Institute of Technology | Ireland
This proposal investigates four interests: an understanding of the city as a form of memory, and the epistemological implications thereof; the specific memory of Ireland’s recent financial crisis; the ‘others’ that this crisis created and displaced; and my own role as an ‘other’ studying in Ireland, who arrived in anticipation of leaving.

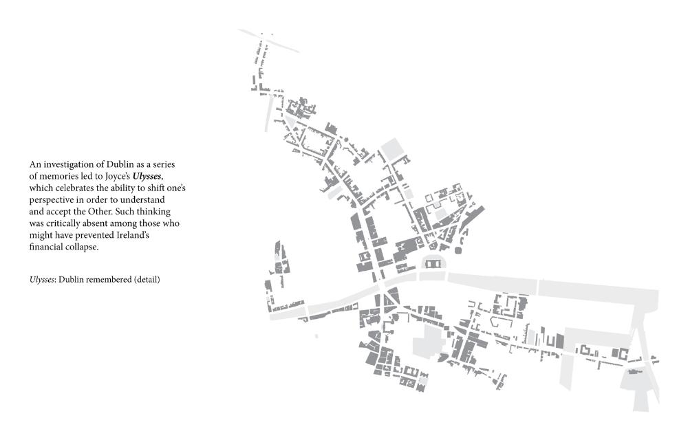
Work began with an investigation of Dublin as a series of memories, placing particular emphasis on Joyce’s Ulysses. In what may be the best-known ‘memory’ of Dublin, Joyce argues that modernity is the ability to consciously shift one’s own perspective, in order to apprehend and accept the Other. Such thinking was conspicuously and critically absent among those who might have prevented Ireland’s financial collapse.



Located on Dublin’s College Green, the Periphery Club occupies the shell of what was Patrick Daly’s Club (1791), a social club for Parliamentarians. Daly’s was renowned as both a luxurious spectacle and a place for productive, non-partisan debate, shaped by the host himself. The Periphery Club adapts this memory, reinhabiting the building—now administered by Ireland’s National Asset Management Agency—as a club for Ireland’s fiscal policy makers, and an opportunity to foster the critical perception Joyce describes.

The club accommodates four groups: the host, an expert-in-residence; the public, invited for special events; the members, the object of the club’s perceptual reformulations; and the staff, who operate interstitially between other rooms and functions. Each group occupies a separate (Other) realm, with fissures and crossovers creating moments of mutual apprehension. Materiality and detailing are conceived as a field of symbolic fragments: as in Ulysses, meaning accrues through sequence and memory.

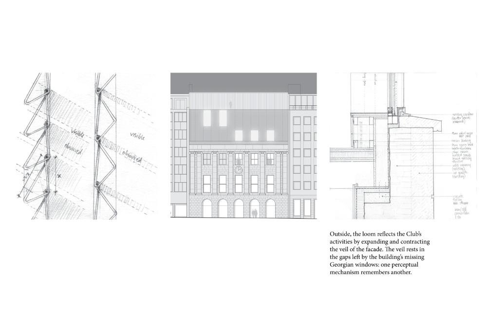
The narrative sequence of club rooms, adapted from Ulysses’ climax of perceptual reformulation, is interrupted by moments of strategic emptiness. At the club’s centre, a cubic excision enables the building’s most significant moment of encounter, and exposes the mechanism the controls the façade: a shroud of bronze mesh that tightens or unravels to reflect the club’s varying accessibility. This loom and veil thus extend the building’s conceptual parallax from the private realm of the club into the public realm of the city.


Tutor(s)
Donal Hickey
2011
• Page Hits: 8063         • Entry Date: 19 September 2011         • Last Update: 19 September 2011