Next Project

Storm Registry Centre, St Andrews

Part 1 Project 2011
Angus Ritchie
University of Strathclyde | UK
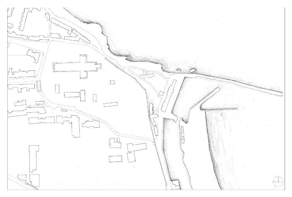
Located on the boundary of the Cathedral Precinct Wall in St Andrews the Storm Registry centre provides a base for weather monitoring and learning overlooking the East Sands towards the North Sea. The brief stipulated the design of a building which would allow weather to be monitored through various means, both digitally by professional forecasters as well as by the eye by students who would travel to the centre and stay at dormitories within the building while allowing public interaction with the centre. The project focused on how the building could be constructed and developed as the needs of the building changed.

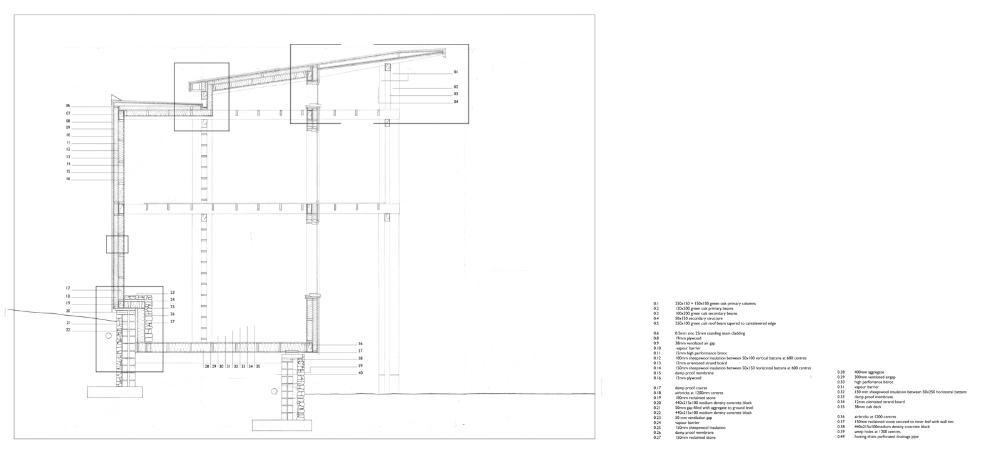
The relationship between the public and operational entities of the building allow the users to experience the various methods of weather monitoring through the use of the split level staircase design. This active engagement of the public with the building aims to educate the users about their surroundings by encouraging them to spend time within the building and children to aspire to and work with the professionals.

Construction combines a curved rammed earth section, constructed from the excavated material, housing permanent fixtures with a green oak portal frame. The lightweight nature of the timber spine, housing the monitoring stations and dormitories allows the section to be adaptable and extendable. Once the building has served its purpose the frame could be dismantled leaving the rammed earth wall to continually weather presenting a long term until it has weathered to the point it is replaced in the ground from which it was removed.

The flexibility of the building allows the building to be used for the duration of its use on site without leaving an enduring scar marking the site where the station once was once it has been dismantles. Instead leaving the relic of the rammed earth to further the education of weather monitoring.


Tutor(s)
Alasdair Tooze
2011
• Page Hits: 8712         • Entry Date: 19 September 2011         • Last Update: 19 September 2011