Next Project

[Re] Process :The Breaking yard

Part 1 Project 2012
David Concannon
Cork Centre for Architectural Education | Ireland
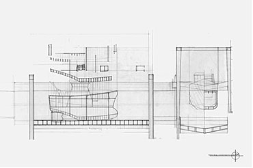
The proposal

This project proposes the creation of a new industrial process within the post-industrial maritime city, the project investigates a facility designed for the breaking and repair of fishing vessels that have past beyond their usable life. There are currently 1378 registered fishing vessels in Ireland, taking into account un-registered boats this number may be as high as 5000. As the average life of these boats is 22 years and there are currently no ship breaking facilities in Ireland there is a clear need for a facility to recycle these boats. The architecture of the yard is devised from the process of de-construction, the journey of these boats from complex workings back to their raw materials. Its working nature and aesthetic quality are driven by the passage of time and decay that accompanies the death of these ships.

The Site
Cork is a city with a long maritime history. It is a city born from tidal marshes; its early survival was dependent on a symbiotic relationship with the water. In recent years the city has turned its back to the sea as its importance as a trading port has been usurped by the super ports of the container age. Its dockyards now stand idle; the site was chosen to retool part of the abandoned waterfront.

The design

The architectural strategy of the yard was to re-engage the industrial process with the waterfront in a city that has turned its back on the water. The yard was designed to be defined by and articulate the process of de-construction that occurs within it. It is an efficient dis-assembly line exposing its inner workings. The boats are taken from the water and deconstructed by machines; their skeletal equipment removed, and their structure and skin sold for scrap or retooled as the skin of the breaking halls.

The facade reflects and exposes the flow of the workings, the vessels being broken and repaired, creating the ever-changing, turbulent landscape within the site and the wider cityscape.


Tutor(s)
Dr Gary Boyd
Paul Butler
Lorenzo Cammoranesi
2012
• Page Hits: 8157         • Entry Date: 07 September 2012         • Last Update: 07 September 2012