Next Project

The Royal Press, Melaka, Malaysia

Part 1 Project 2012
Matt Loosley
University of Huddersfield | UK
Many are under the false impression that Melaka's UNESCO listing makes the town a living museum, accurate and preserved fragments of what once existed in its entirety, but this is not the case. Buildings within the historic centre are often razed to the ground to make way for a new hotel. Nearby, traditional craftspeople are moving out of shophouses owned by their families for generations, as their demands are replaced by those of the tourist; needing hotels, restaurants and souvenir shops peddling kitch.

The demands of the tourist remain satisfied, while those of the local people are ignored. Their heritage, manifest in the built environment and traditional ways of life, disintegrate quietly, their voices unheard and protests ignored. This design proposal seeks to address these issues by making The Royal Press a destination for the responsible tourist, giving them the opportunity to experience the craft of printing in Melaka and making a positive impact on the local community in social terms, not just economic terms.

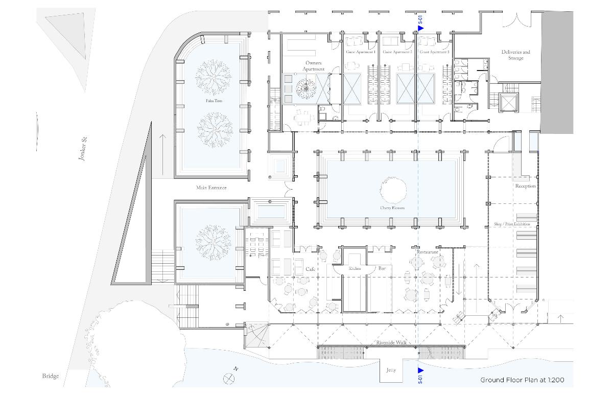
With the intention of designing through reinterpreting local vernacular, The building is centred around a courtyard - a shaded retreat from the hot sun and monsoon rain, that encourages cross ventilation. The section is clearly inspired from the roof of a Malay house, and local materials are used in its construction - local builders would be able to construct The Royal Press, using Malaysian Hardwood, and local brick and terracotta. For better or worse, this is far from the international style of many contemporary buildings in SE Asia.


Tutor(s)
Vijay Taheem
2012
• Page Hits: 11434         • Entry Date: 10 September 2012         • Last Update: 10 September 2012