Next Project

Routes Through a State Library: Schlossplatz, Berlin

Part 1 Project 2012
Alexandra Butterworth
University of Cambridge | UK

I propose a NATIONAL LIBRARY for Berlin’s Schloßplatz. The collection of the State Library is divided between two locations; the pre-1945 collections are housed on Unter den Linden, and the modern collection is accessed within the Scharoun building on Potsdamer Straße. The historic civic importance, scale and central location of the Schloßplatz presents the opportunity to unite these collections under one roof, creating a large public institution. The relocation of the two State Library stacks will allow the reintegration of their cataloguing systems for the first time in over 60 years. It has proved near impossible to reconcile these systems in the current library buildings, and the collections currently exist independently of each other.

The building I propose is a culmination of investigations about ROUTES: those which are curated for a particular effect or experience, existing paths developed by people over time to negotiate the urban fabric, and those programmatic routes taken in a library of this scale.

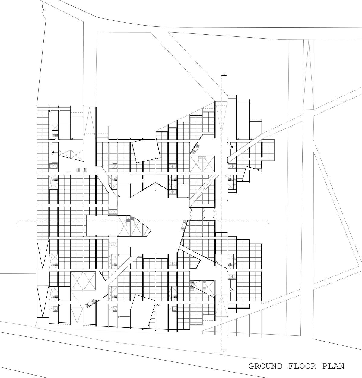
In each of these cases, such routes demonstrate a navigation of a larger volume or space. People take a particular route through the city to a specific destination, avoiding areas, walking down an interesting street, or taking the quickest path. Within a library the route taken by a visitor is partly informed by the location of programmatic spaces, but principally by the classification system. Each cataloguing method presents a complex division of space into numbers and letters, from large areas to a particular item.

The Library I propose is generated by this principle. The cataloguing system is spatialised to constitute the volume of a building, through which programmatic routes are laid. The stack is ordered around five voids, and arranged in rows on steel shelving between concrete spines. Reading rooms gather in the voids to opportunistically exploit the daylight, while silent study rooms hide within the stack.

The pedestrian approaches to the site are extended within the Library; it is possible to use the building as a cut-through across the Schloßplatz as well as to engage with the Library programme. Thus the National Library becomes part of people’s route through the city.


Tutor(s)
Joris Fach
Ingrid Schröder
2012
• Page Hits: 16832         • Entry Date: 17 September 2012         • Last Update: 17 September 2012