Next Project

Retooling the Row (Sandy Row Trade Workshop)

Part 1 Project 2012
Shea Mcgibbon
Queen's University Belfast | UK
The initial origins of the design come from an urban street strategy devised for Sandy Row. This aimed to create a public space, a node of interaction and exchange. Therefore the conceptual idea of forming a “viscous space” in a rapid city was devised; creating a space where people feel free to spend time and engage with the local community.

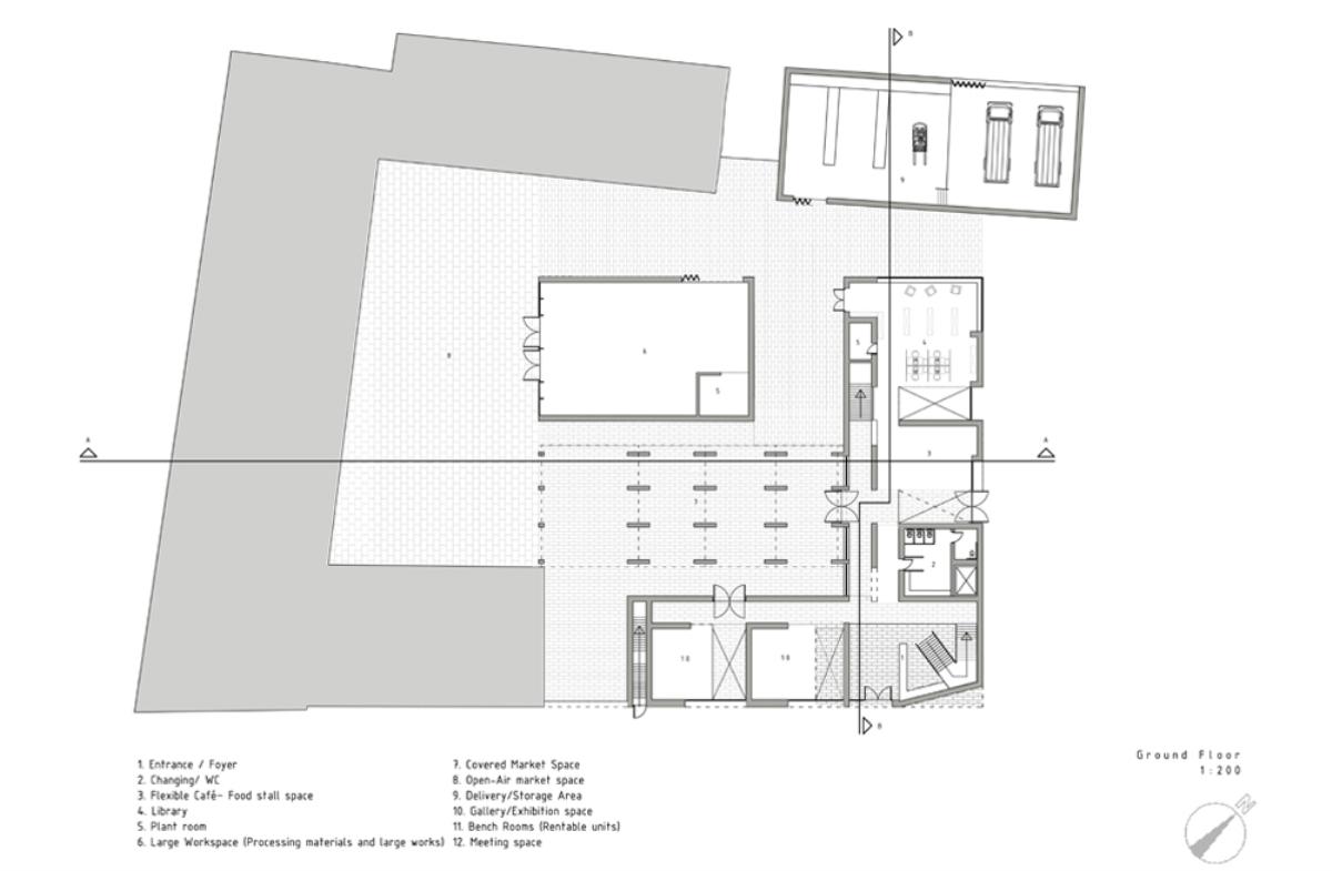
The Trade workshop is an extension of the proposed remodeling of Gilpin’s as a trade school. An array of different spaces for the creation and restoration of timber furniture, structures and products are provided in the hope that the existing culture of making can cultivated in this area of Belfast. The workshop will provide for those who require space for short-term purposes, visiting artists, students, as well as those local crafts people who would not be able to own or rent a commercial unit of their own.

By creating formal bench workshops and design studios spaces are provided for short and long term use. A large timber workshop will also cater for joinery, form-workers, in a space that doubles in function as a community hall for exhibition.

Its design generator was that of the fold, folding and adjusting surfaces to bring light into a building, but also folding in a less literal way to bring the street into the workshop and the workshop to the street, creating a more public building, and one embedded within the community

An array of public spaces exist within the scheme : an open air market, exhibition spaces, a sheltered market space and the workshop, all of which aim to make the experience of the workshops less institutional and more a part of the community and spirit of Sandy Row, engrained into the urban fabric of the street.

The massing and layout of the separate elements of the scheme help shape and define surrounding urban spaces. By breaking the boundary created by the adjacent road a sequence of public urban spaces are made. Open to south light these spaces provide nodes of recreation along Sandy Row, with a central market space for congregation and exchange.


Tutor(s)
Professor Ruth Morrow
2012
• Page Hits: 9178         • Entry Date: 18 September 2012         • Last Update: 18 September 2012