Next Project

Geek Factory

Part 1 Project 2012
Petr Esposito
Ravensbourne University London | UK

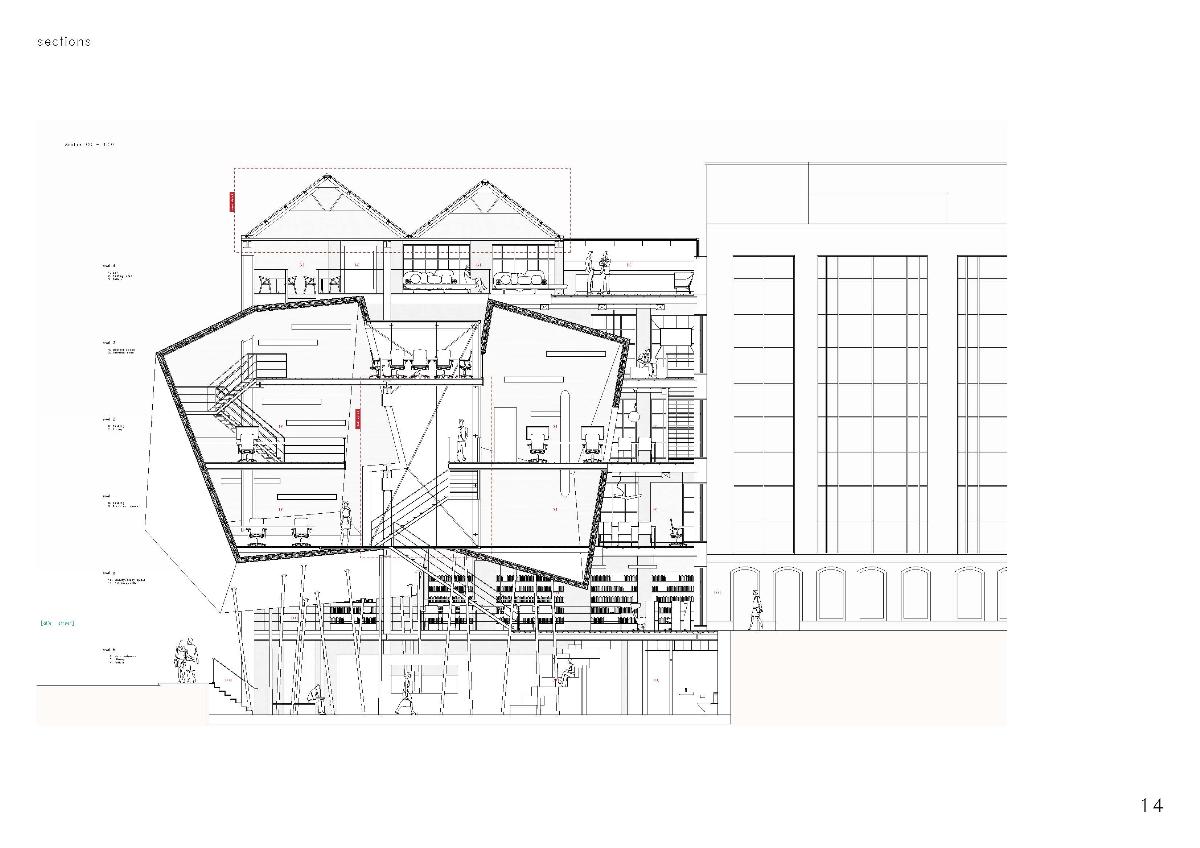
Drawing upon those who are typically home workers, and who work un-sociable hours, the scheme will focus around the Geek. The demographic of the Geek offers a range of opportunities for the proposal to exploit and engage with. Working with key characters, the programme of the site is developed around existing articles that discusses the possible lack lustre social endeavours and the prowess of academia values instilled within the persona of a geek and seeks to address the imbalance of work vs. love for out key protagonists.

Within the issues of the nomadic worker is the subject of isolation and the negative impact this may have upon the individual and the team. One of the key issues for business is to develop effective relationships amongst its work force. The scheme will consider how architecture might “hot house” the development of strong working, or possibly intimate relationships among its employees, and guests of the site. This has resulted with and emphasis on site lines and views to other inhabitants of the site, as well the practical move of creating living units to deliver a residential work space and draw in a commercial, and geek work force that drives the programme.

The site of the ‘Geek Factory’ occupies an awkward space between the new developments in East London, and the expanding boarders of the city fringe. Current proposals in the area favour the commercial negating a growing demand for diverse spaces addressing the changing life style for a growing democratic workforce. The opportunity of this peculiar context allows the building to draw upon commercial capital as well as a nomadic population

It is designed to encourage a cross collaboration of the commercial work force and the Geek inhabitants to solve problems and create new solutions. However it is the layered nature of the building that allows for social interaction to develop beyond a reliance of sheer intellect and to enable relationship to build into more worthy, intimate, and dynamic bonds that may lead to perhaps no more than continued friendship, or to more lustrous ends of a sexual encounter, or a lifetime partnership.


Tutor(s)
Layton Reid
2012
• Page Hits: 8175         • Entry Date: 21 September 2012         • Last Update: 21 September 2012