Next Project

Belfast CIC

Part 2 Project 2013
Christopher Quinn
Ulster University | UK
Framed between the mountains, the river and the sea, Belfast is a city that forms a distinct physical landscape. Embedded in the city are a number of Victorian parks as green voids amidst the fabric of brick and stone. In some cases these parks are either socially divided (as is the city) or are simply neglected and under-used. My project aims to re address the potential of Belfast Botanical Gardens and to transform this into a major Cultural Park.

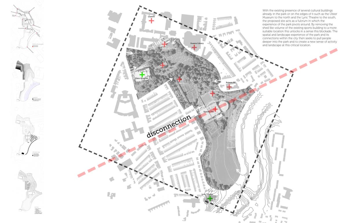
With the existing presence of several cultural buildings already in the park or on the edges, the proposed site acts as a fulcrum in which the experience of the park pivots around. By removing the shed like volume of the existing sports building to a more suitable location this unlocks in a sense this blockade. The spatial and landscape experience of the park and its connections within the city then seeks to pull people deeper into the park and to create a new sense of activity and landscape at this critical location.

The programme is for a new Contemporary Institute of Culture (CIC) which aims to contextualise the Social History of Belfast: old and new, by questioning how such things as ‘Conflict’ can be set with other strands such as ‘Creativity’ and ‘The Contemporary’. These parallel strands of geological volumes create different encounters and dilemmas for the displays and exhibitions. These four vessels, carved conceptually from the surrounding mountains are interwoven and made sense of by a fifth gallery which like a city walk enfolds and holds the other pieces. This fifth gallery and ambulatory connects the building back to both the park and city landscape as a panoramic promenade.

The materiality of the project is informed by the material of the city’s landscape. Carved from stone, the main volumes are held aloft by slender concrete feet which act like trees while the shimmering horizontal sea of the fifth gallery floats to demarcate a space and shadow. The illusion of the floating halo of the promenade at night, illuminates the park at the centre of this new cultural landscape.


Tutor(s)
Mr Paul Clarke
2013
• Page Hits: 5599         • Entry Date: 10 September 2013         • Last Update: 10 September 2013