Next Project

Low rise – high density housing, Barcelona

Part 2 Project 2013
Matthew Truan Bailey
Mendrisio Academy of Architecture | Switzerland
During the semester the atelier considered the idea of low-rise high-density apartments in central Barcelona. Following a period of site investigation and survey, the project began to question the traditional notion of an urban courtyard and how we can live in dignified proximity.

The idea of the building exists in the possibility of an endless courtyard that allows light and air to enter a building. The courtyard is only experienced as an elevation or window; as a potential openness but not a defined space.

Our site contributes to the northeast facing façade of the Rambla de Raval, an important axis of the historic El Raval district.

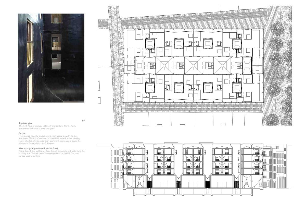
The building consists of 60 apartments over 4 floors, varying in size between 160 m2 and 60 m2. Apartments have a 2.9 metre ceiling height and are serviced by 4 cores, which open to the street on opposite sides of the building. The project has five main courtyards and 8 smaller light wells. The ground floor contains 11 commercial spaces and one larger public room open to the Rambla; all public ground floor situations have a 6.5m ceiling height.

Conceptually the building is constructed of three elements; a concrete load-bearing frame braced by a structural façade, a series of secondary linings that define both courtyards and public passages and finally between each floor, timber apartment cassettes.

The dislocation between structural frame, façade and secondary lining expresses a building constructed of separate components with specific strategies.

Becoming less dense towards the centre as the courtyards increase in size, the sense of the façade as the urban edge to the city and the perimeter of the building becomes heightened.


Tutor(s)
Jonathan Sergison
2013
• Page Hits: 8876         • Entry Date: 11 September 2013         • Last Update: 11 September 2013