Next Project

Crucible: Ballybeg Testing Centre

Part 1 Project 2013
Kieran Cremin
Cork Centre for Architectural Education | Ireland
This project stems from the shift in the Irish economy from one of manufacturing to one of research and development. Surfacing from an exploration into the industrial process of grain handling in the South Docks of Cork City, an attitude of experimentation and testing was cultivated through a series of investigations into the technology associated with the Building Research Establishment.

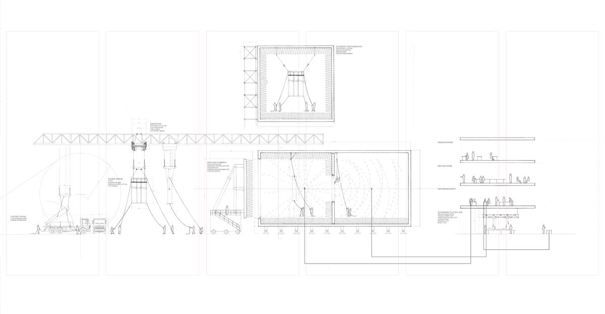
Through its articulation of the testing of building components, Ballybeg Testing Centre aspires to be a beacon in the re-identification of Irish industrial development. The centre sanctifies the act of testing and technological precision in its expression; in the hope of refocusing the construction industry on the need for craftsmanship and care in the wake of a boom of shoddy building fabrication.

Setting itself in a disused quarry near Buttevant, County Cork, the project pays homage to a tradition of construction while aiming to reinvigorate a landscape of limestone cliffs and excess water contaminated from past activity. The initial response creates a ceiling over the three existing limestone elevations and forms a protective enclosure around the testing being performed within. The built form floats above this manmade hollow in the landscape touching only the top of the quarry walls with careful articulation while any interior elements are suspended from the spanning girders. This steel web serves as the primary functional element for all activities taking place within the facility.

The project speculates as to the possibilities of future economic development while laying a marker on past failures. Its processes aim to celebrate the cultivation of a well built environment; exalting high building standards as something that is both aspired to and achieved within this crucible of steel and stone.


Tutor(s)
Dr Gary Boyd
Paul Butler
Lorenzo Cammoranesi
2013
• Page Hits: 9120         • Entry Date: 12 September 2013         • Last Update: 12 September 2013