Next Project

La Fondaria

Part 2 Project 2013
Elli Farrant
Kingston University Kingston | UK
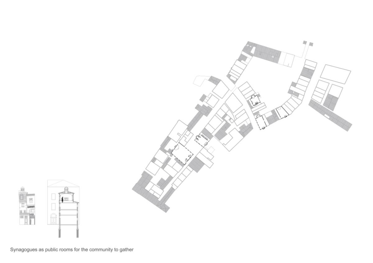
During Venice’s Golden Age as a global centre for trade, the Venetian Republic forced the Jewish population to live on a single, gated island whilst the remaining city was inhabited by a diverse merchant population. However, the state – imposed ghetto translated into a rich community identity due to its familiarity and the successful urban arrangement. Today, instead of foreign merchants the city is inhabited by an equivalent number of tourists each day to Venice’s population size.

The proposition conceptually enlarges the footprint of the former Venetian Jewish Ghetto beyond its strict limits to link with a busy working street to create a new, larger community identity. Through the introduction of a campo – traditionally a space to allow Venetians to gather – the two urban conditions are joined.

The Venetian word ‘Ghetto’ originally meant foundry and was where the waste products of metal working were stored. The proposed live/work courtyard is focused on rebuilding the working city through the reintroduction of workshops, for activities such as metal working. The nature of the buildings informs the character of the space whilst the use over time is subject to change.

The brick buildings are linked by a continuous roof that begins at the point of the busy street, gradually sloping down around the courtyard until it reaches single – storey height at the canal.

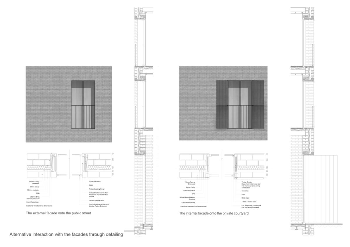
On the external façade, the window shutters are concealed within the depth of the monolithic brick wall whereas within the courtyard, the window shutters have been placed on the outer face of the brickwork to create an interaction with the communal space. The facades of the internal courtyard shift in response to the cyclical daily activity of the community within.


Tutor(s)
Matthew Dalziel
Jonathan Woolf
2013
• Page Hits: 10536         • Entry Date: 13 September 2013         • Last Update: 13 September 2013