Next Project

A Bit of Earth

Part 1 Project 2013
Tom Eddington
University of the West of England | UK
When Mary Lennox asks “might I have a bit of earth?” in Frances Hodgson Burnett’s 'The Secret Garden', it symbolises the changes in her understanding of the world she occupies, her attitudes toward the people in it and a move to engage with it. The garden offers a hidden space for sensory exploration and personal growth. Through access to it Mary is able to develop, becoming healthier and more sociable, her first hand experience of nature provokes a greater response in her than of any human contact hitherto. The greening of the garden serves as a metaphor for the formation of friendships and the blossoming of her character: a transition from solitary misfit to a happy sociable child.

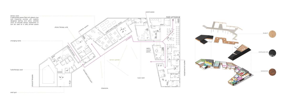
Drawing on themes in 'The Secret Garden', ‘A Bit of Earth’ proposes a garden and interior spaces to offer sensory experiences for children with Special Educational Needs (SEN). The garden lies hidden from view within a public green space, enclosed and protected by foliage and the surrounding landscape of the Harnham Water Meadows in Salisbury.

The garden’s design includes a wide range of stimulating features and areas of calm secluded from the active spaces, achieving both using the natural landscape and artificial spaces such as sensory rooms hidden within the garden. The main building provides spaces for indoor sensory activities and education as well as physical therapy rooms (including a hydrotherapy pool), catering and an overnight respite care centre. This building acts as a barrier to the public areas of the surrounding landscape.

The need for SEN care centres is increasing, national healthcare’s ability to ensure the survival of premature births has risen dramatically since the end of the 20th century and because of this the number of children with disabilities has also risen. This has culminated in the introduction of the Children and Families Bill 2013 which will see significant changes in local and national council’s responsibilities for education, health and care plans for people aged 0-25 with SEN. Increases in provision of affordable childcare services and facilities will be required if the bill’s aims are to be met.


Tutor(s)
Elena Marco
2013
• Page Hits: 5425         • Entry Date: 18 September 2013         • Last Update: 18 September 2013