Next Project

Rest Villa

Part 1 Project 2013
Kah Hoe Leong
National University of Singapore | Singapore
In the pursuit of an emerging new typology of a medical institution, this project endeavours to achieve what is not commonly perceived, by eradicating the stereotypical ideas of what constitutes towards the final built environment. Singapore is currently facing problems of an ageing population; resulting in the pressing demand for elderly care. The project explores possibilities of retaining a sense of normalcy for elderly dementia patients by fabricating non-institutional healing environments within familiar settings whilst engaging them simultaneously with the neighbouring communities through everyday activities. This contemporary development will house the dementia patients, young families and students along with public amenities such as cafés and art galleries.

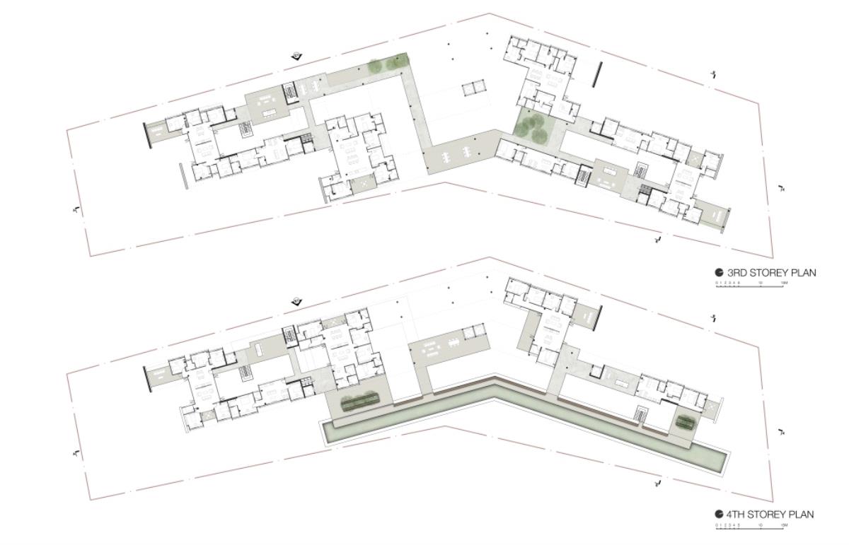
Nestled amongst the high density, high-rise periphery of the central business district of Singapore; the linear Yan Kit Road site is sandwiched between high-rise developments such as the Pinnacle @ Duxton and Tanjong Pagar Complex. The site bore challenging design issues with narrow site constraints, irregular topographical conditions, alongside with towering neighbours, thus the development had to be tailored meticulously with internal linear courtyards and allow for maximum natural ventilation and daylight penetration internally.

The project desires to extract the essence of courtyards and communal spaces that attributes to the healing environments of the medical institutions greatly. By imposing the elements together with a supplementary ‘green’ component throughout the design, on each level and within each dwelling unit, it conceives spaces of opportunities for both dementia patients and residents to congregate and socialize.

The design of the unconventional institution is expressed by three bands spanning across the tapered site, each band containing a vertically extruded frame, functioning as a framework for the horizontal insertion of boxes of dwelling units and facilities. The installation of full height vertical bi-folding screens allows for porosity and openness, which exemplifies the notion for limitless visual communication between residents and their surroundings.
The encompassment of young families, students and the public in a dementia institution, alters the presumption of a singular function for such facilities. The incorporation of various groups challenges the design to be made universal and all-inclusive, both architecturally and socially.


Tutor(s)
Peter Sim
2013
• Page Hits: 4869         • Entry Date: 23 September 2013         • Last Update: 23 September 2013