Next Project

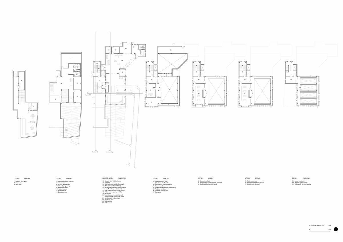
Baring the Device: Civic Flytower

Part 1 Project 2014
Raphae Memon
Manchester School of Architecture | UK
The Civic Flytower celebrates processional activity, by revealing the triumvirate of practice, production and performance, and its requisite commingling.

Processional activity is an example of social drama that allows a set of actors to perform to a huge audience in a city of confined spaces. Processional space materialises as the urban fabric becomes a backdrop. The way the city reacts to the unaccustomed and extraordinary nature of social drama is determinant on the supply of bleachers, and temporary additions to street furniture. Historical and iconographic programs of social drama within the Civic Quarter of Manchester, such as protest marches during the Conservative Party Conference and the Remembrance Day Procession, require a considered re-structuring of spaces around buildings.

The scheme extends the pavement to create a pause space: a singular intervention helps to form a collective space. The recession of the building on the site enables lateral drift, and so showcases an increased level of back-of-house activity, before ritual movement leaves the extended footpath.

The theatrical concept of baring the device breaks the simulacrum and reveals the back-of-house nature of performance. The revealing of these activities enables the backstage work to showcase its own genesis and nature – the theatrical flytower that usually hides and conceals stage sets is now adapted to store and display the artefacts of social drama.

The main occupants are these artefacts in production: set pieces, bleachers and temporary street furniture. Portrayed as both active and dormant, these set pieces process through their build stages from workshop to assembly space to the street. The scheme mirrors this thinning out until it dematerialises and hands itself over to the street. The street is the stage.

After the social performance has ended, set pieces are returned and compacted into the flytower for storage, display and reuse: the processional realm may be temporal, but the ritual essence forever holds an everlasting memory.

The multi-sensory built environment becomes activated during these street events, and the city transubstantiates from the ordinary everyday realm to the extraordinary processional city.

Processes of transformation are made visible in the Civic Flytower. The device has been bared.


Tutor(s)
Darren Deane
2014
• Page Hits: 12033         • Entry Date: 28 August 2014         • Last Update: 28 August 2014