Next Project

Civic School Sheffield

Part 2 Project 2014
Neil Michels
University of Sheffield | UK
In 2010 MP Michael Gove become the Secretary of State for Education. Gove initiated a number of changes to education policy, one major change was the halting of the Labour initiated school building programme; ‘Building Schools for Future’. Gove has implemented a new ‘Baseline Design’ building programme. This is beginning to result in school buildings no better than glorified sheds. Can we build schools in a different way and make them more civic in the process?

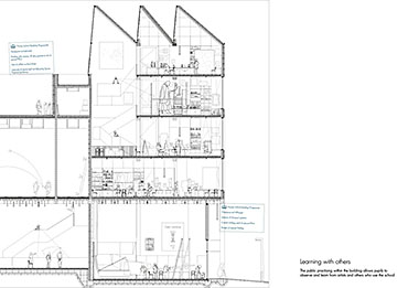
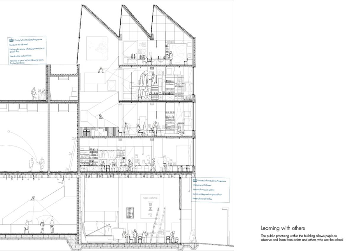
This proposals suggests building a secondary school in the centre of Sheffield. A school open to all which combines education and regeneration budgets to provide a school which can be used by the public and pupils alike.

Located on Sheffield's High Street, the project suggests that civic functions can be used to revitalise the high street, rather than the norm of retail developments. The school, open 24 hours a day, aims to test another approach to school buildings, a more civic approach: located so that the school can be easily accessed by the public and pupils, encourage use of its facilities beyond the typical school day. It allows the public to learn, practice, and work from within the school building.


Tutor(s)
Mr Russell Light
Mr Satwinder Samra
Leo Care
2014
• Page Hits: 20895         • Entry Date: 16 September 2014         • Last Update: 16 September 2014