Next Project

Centre for Ethical Fashion

Part 2 Project 2014
Kristina Fescenko
University of East London London | UK
The design embraces a series of new public spaces and a Centre for Ethical Fashion, at Brick Lane’s former Truman Brewery, in East London.

The existing site has listed brewery buildings and a disused car park to the east of Brick Lane. It offers the opportunity to mediate between the life of Brick Lane and it’s more deprived and fragmented eastern hinterlands. Furthermore and as part of the Bangladeshi Community, the Brick Lane area is strongly connected to fashion industries.

The idea of a Centre for Ethical Fashion grew out of existing conditions and a need for more ethically produced fashion, locally and globally. While organic and fair trade food is commonly accepted, ethical fashion has yet to find its way. As such, the Centre is set up to research and enhance the entire processes of design, textile production and clothing manufacturing, labour conditions, marketing, transportation and retail. It is a place for developing knowledge and skills.

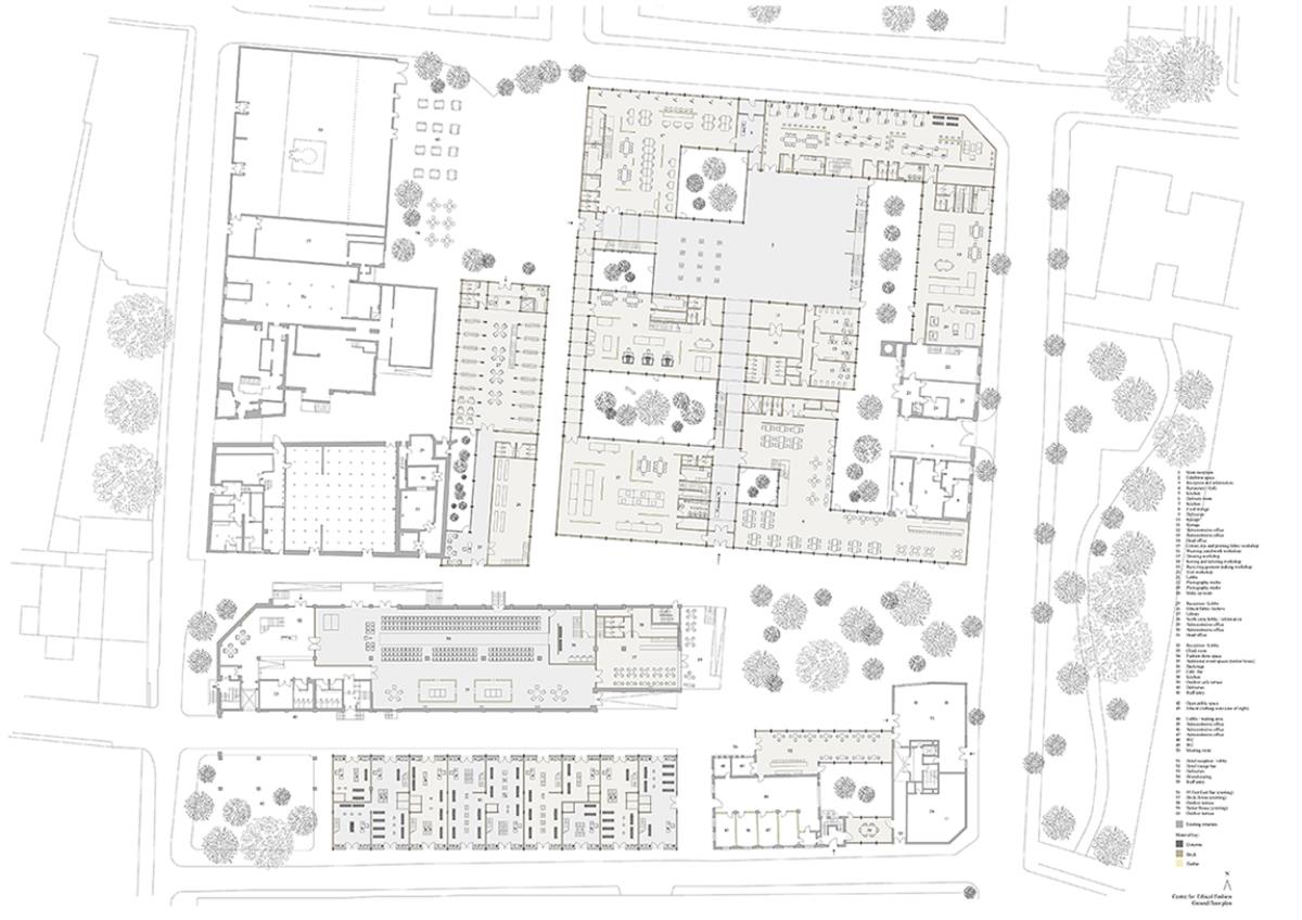
The Centre for Ethical Fashion extends an existing network of alleys and open yards from west to east. A cluster of existing and four new buildings are grouped around a new square and accommodate the main workshop building, a library, hotel, restaurants and a market.

The main workshop building has a central access corridor and exhibition hall, as well as a series of courtyards and functional building sections, which facilitate diverse fashion research and production. The corridor connects each section along qualities of light, dark, openness and closure. The building sections relate to themselves and also to adjacent public space in an invigorating manner.

Each building section has double height spaces and flexible one storey timber modules or ‘tables’ that allow reconfigurations, according to changing needs.

The roof of the main building is a concrete frame structure that sets a linear pattern throughout the building. Deep roof beams achieve diffused natural light for workspaces and protect fabrics from sunlight. Furthermore, the visual and functional transparency below the unifying roof ‘canopy’ permits a sense connection. The Centre is a collaborative environment that allows inspiration and progress as Ethical Fashion evolves.


Tutor(s)
Christopher Hadrys
2014
• Page Hits: 10166         • Entry Date: 22 September 2014         • Last Update: 22 September 2014