Next Project

Zuri Market

Part 1 Project 2014
Tanja Kaufmann
Alisa-Ramona Kellner
University of Innsbruck | Austria
IS - 2014 CONDITION
Shopping is currently closely linked to the components of stress and lack of time. This creates very little positive attributes whilst grocery shopping in addition to lacking personal communication due to it being replaced by social media and technological communication, thereby creating an impersonal barrier.
The design concept is based on the run-down parts of the town. Living and working has been kept separate and there is no synergy, thus the interaction is missing. It looks empty and anonymous and although outdoor spaces are designed with available free space they are rarely frequented. Therefore, the Zuri market serves the following factors:
I-nteraction - I-ntegration - I-dentification - I-ntensification

TARGET - 2025 CONDITION
MARKET CONCEPT - It will be offered as a sustainable approach to waste prevention fresh home-grown produce with targeted merchandising in Fill-In systems. The customer can see the quantity of goods that they actually need and can fill the amount into reusable containers from; any other packaging is accounted for. The product range is reduced and is therefore more efficient. Through additional offers, such as its own production and cooking-islands shopping should be viewed as a positive experience and produce a longer stay of visitors in the market.

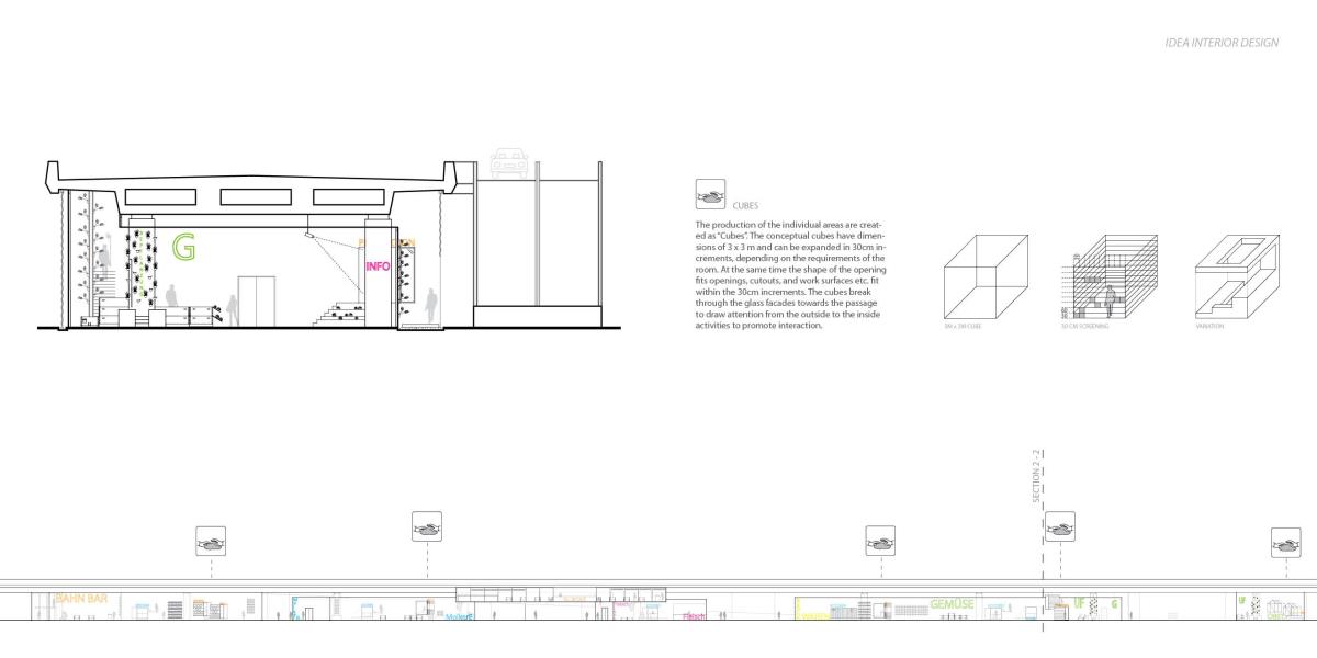
230 M ZURI MARKET is not a classical concept of a supermarket. Based on Fill-In principle there are only fresh and primary products grown. It represents a sustainable concept of a food market, in addition to the normal shopping and the opportunity to stay there longer to produce goods themselves. They also provide workshops, which allows visitors to exchange thoughts and experience a new sense of food products. In addition to the many luxurious urban farming areas outside the market, there is also the market itself “Look beds”. With energy harvesting from piezoelectric elements and rainwater harvesting, the market tries to remain as autonomous as possible.


Tutor(s)
Andreas Flora
Ferdinand Reiter
2014
• Page Hits: 3721         • Entry Date: 22 September 2014         • Last Update: 22 September 2014