Next Project

Soft Yakka

Part 2 Project 2014
Dominic Broadhurst
University of Sydney | Australia
Hard Yakka is an Australian colloquialism; it is work on an object - working the land, working on site, working in the shed. Romancing the act of physical labour it affirms the integrity of an honest day and is essential to the civilizing ambitions of the European colonisation. The beach is of equal significance to this psyche but in the completely opposite sense. It is an immersive realm where the land works on you. It is a place of leisure, of relaxation, rejuvenation and reconfiguration. Soft Yakka is an invention. It is work on one’s self. At the beach the sublime is potent, Soft Yakka is also its affect. This project seeks to probe the notion of Soft Yakka in an absolutely cosmopolitan sense.

Bondi’s proximity to the cbd originally provided a buffer that detached the site from the reality of the everyday and enabled its conception as a seaside resort and pleasure park. Inevitably, when the beach interrupted Sydney’s suburban sprawl Bondi was instead declared Sydney’s city beach. Ironically however, in the fury of gentrification, a tangle of ill-conceived parks and boulevards effectively severed Bondi from its urban constitute.

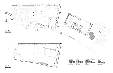
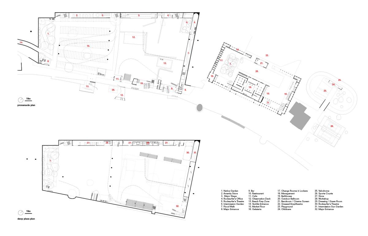
In a spectacle of engineering squared at a buried geological truth, this project seeks to re-attach Bondi to its city. Informed by a study of Venice Beach CA the strategy is of intensification rather than resolution. The existing promenade becomes vital. As an architectural type that incites extroversion and liberates traditional privacies, it will be expanded, inviting proximities that architecture instinctively works to contain. It’s the inevitable impermanence of beachside architecture recognized as the urban ideal of event based hybridity. Soft Yakka mobilised.


Tutor(s)
Dagmar Reinhardt
2014
• Page Hits: 3726         • Entry Date: 25 September 2014         • Last Update: 25 September 2014