Next Project

A Centre for Peace and Reconciliation Studies

Part 1 Project 2014
Yoana Krasteva
Coventry University | UK
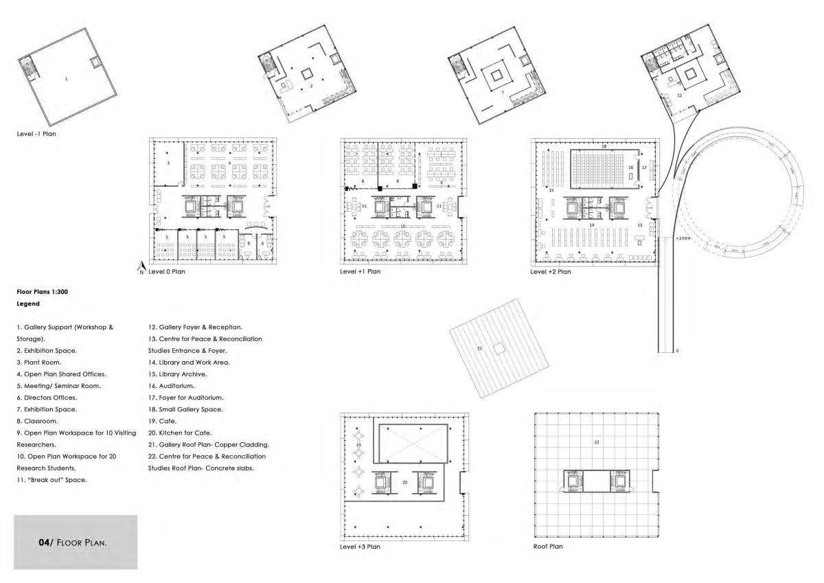
The Centre for Peace and Reconciliation Studies (CPRS) promotes cutting-edge interdisciplinary research that addresses the challenges posed by conflict. Through advancing research, globalising education and enabling partnerships, the Centre for Peace and Reconciliation Studies (CPRS) aims to contribute to broaden peoples' understanding of peace and reconciliation.

What I want to achieve with the design of the buildings is to convey the message of conflict transformation. My proposal consists of two cubes that are juxtaposing to each other in terms of openness and closeness, materials, and the way they sit on site. The cubes represent the extremes between peace and conflict. A link bridge between the two suggested that there is always the opportunity for reconciliation.

The Glass Building accommodates the Centre for Peace and Reconciliation Studies along with auditorium, café, and libraries. The glass and stainless steel reflect light in a very unique way which changes throughout the day and the year. The Copper Building accommodates the gallery space that exhibits the collection of the Herbert Art Gallery on the theme of Conflict and Resolution. The copper weathers with time and engenders a sense of life.

All of the interior is created to help engender a sense of calm. The interior materials are very warm and the acoustics are very calm. Once the people are on the roof of the Glass Cube it provides an overview that allows you to see once again the context.

To conclude, the Coventry Cathedral memorializes a tragic event in the past and reflects the absence of those who have died here, The Coventry University represents a trust in the future and my scheme is in a very much of a connection between the two worlds and about the present moment in time.


Tutor(s)
Russell Stevens
2014
• Page Hits: 5027         • Entry Date: 01 October 2014         • Last Update: 01 October 2014