Next Project

A Beautiful Mess: An Architecture for Hikikomori

Part 2 Project 2014
Terence Tang
National University of Singapore | Singapore
The past two decades have seen the increasing emergence of hikikomori in Japan ? individuals who withdraw from society for a period of six months or more. Hikikomori shun social contact and even fear it, choosing to escape by means of shutting themselves away; they live in solitude, seeking isolation from endless encounters in a social world.

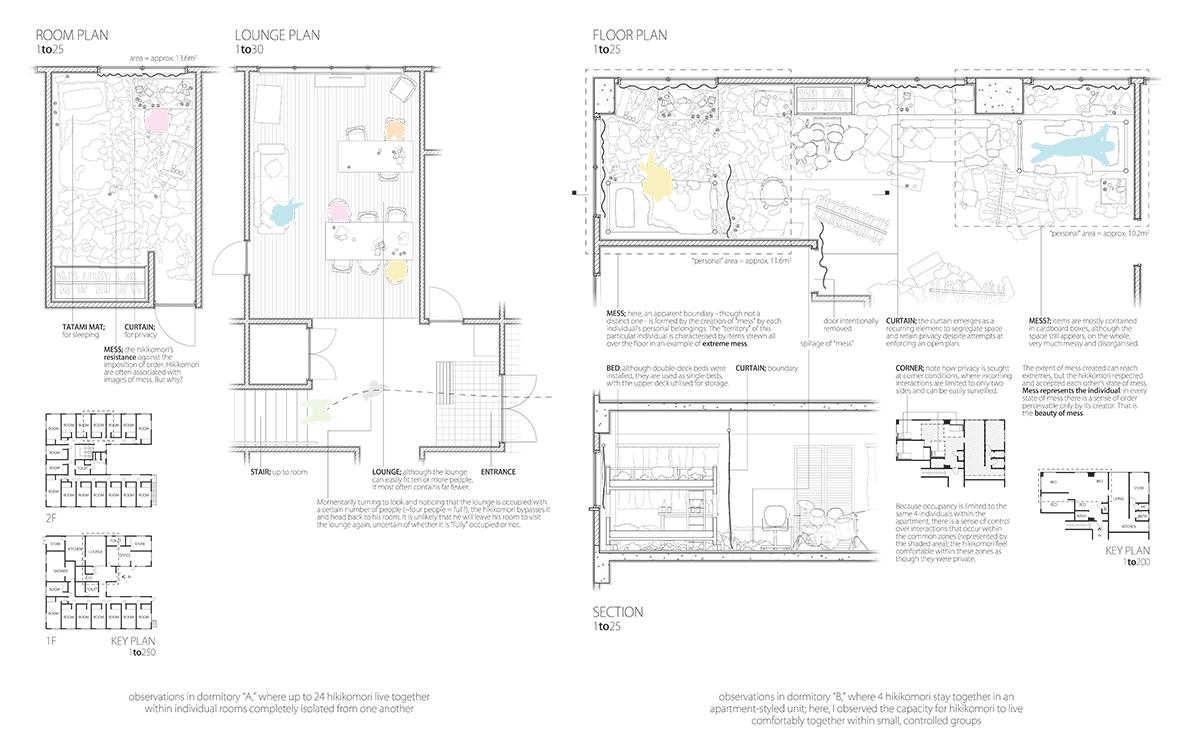
This thesis adopts an experimental stance in re-thinking architecture for hikikomori. Observations at New Start, a hikikomori support group in Chiba, Japan, contributed to the formation of this thesis. Using recurring themes of mess and re-examining forms of social contact in varying degrees, this endeavour materialises as a sensitive integration of living units together with spaces for work and play. It is an exercise in redefining architectural language, composition and form. It is also an exploration into architectural gradualism, studying the various ways in which a progressive sequence of spaces ? and subsequently, the spatial and human relationships developed ? can contribute to the gradual re-discovery of the hikikomori’s self-confidence and social ability.

The notions of wall and boundary are re-invented, utilising mess as a medium for negotiating the hikikomori’s relationship with the outside world, as well as with one another. “Safely” peering out from their private sanctuary through the mess, the hikikomori gradually begin their communication with others. The spaces are designed for intimacy and privacy; yet at the same time, they flexibly and progressively agglomerate to serve wider social functions. Here, architecture is completely re-imagined.

This is an architecture for hikikomori. A Beautiful Mess.


Tutor(s)
Tsuto Sakamoto
2014
• Page Hits: 25031         • Entry Date: 03 October 2014         • Last Update: 03 October 2014