Next Project

Cultural Hub for The Malaysian Chinese Federation of Associations

Part 2 Project 2014
Jin Yu Lee
University of Malaya | Malaysia
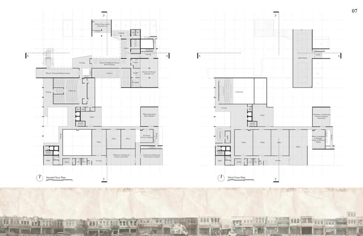
A referral of civic narrative introducing the space intervention to portrait the original lifestyle and the characteristic of the original community. Associations by Malaysian Chinese are major influence to growing city. Today, lifestyles and cultural movement are remaining as it’s significant to stand as KL Chinatown. This thesis applied poetic imagination, though not in order to create poetic architecture but making certain kind of architecture that could emanate a sense of formal poetry. The place is for Chinese associations; the unity, the cultural movement and integrations which one could approach the celebration of community and event in social and civic way. The overall is a mirror box reflects the urban skyline and characteristic of the community. Expressing via interlocking between cultural and commercial spaces towards exotic and sophistication of KL Chinatown’s mixing urban skyline.

The concept embracement usage of courtyards. Complexity of spaces from usages, confusing yet systematic flowage and division allows the individual to experience the building through subtleties of design decisions he carefully makes, choreographing a performance of such through both the material composition and the layout of design and surrounding landscape. The external façade is a humble expression matches existing shop houses for small trading businesses; small offices for commercial and associations’ activities at upper floors. The façade and external zoning, creating repetition by division of spaces for trades. Partially meant to be commercial offices, these offices are rented to generate income. Here, existing community rebuilt their existing lots from 2 storey shop houses into 8-10 storeys for the same purpose. A reflection towards series of spacing admits some value in mystification, labyrinth, or surprise in the environment that makes the setting remarkably significant.

Special study is the flexible panels within courtyards via space integrations. This system provides dynamic spaces to suits different proportions and scale of events. Multiple spaces up to approximately 30 layouts from 1 to 6 types of spaces in order to run several events with different scales and flowage at the same time. Showcase characteristic of the community in utilizing spaces for different purposes that makes the building stood in fully practical, functional, memorable and essential.


Tutor(s)
Ezlina Adnan
Helena Aman Hashim
Take Bane Lim
Teng Ngiom Lim
Saari Omar
2014
• Page Hits: 5620         • Entry Date: 06 October 2014         • Last Update: 06 October 2014