Next Project

Within Old Walls : A Microbrewery

Part 1 Project 2014
Roger Bonnar
Ulster University | UK
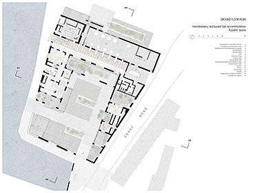
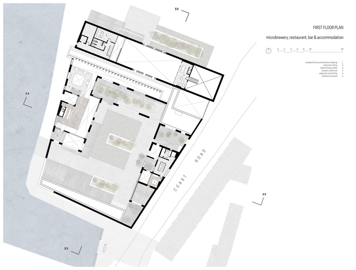
Glenarm Village is situated at the mouth of the Glens of Antrim in Northern Ireland. It was originally a hub of power within the Glens due to its close proximity to Scotland for trading. Limestone was quarried from the Glen and shipped along the coast and across to Scotland. The brief was to design a microbrewery, restaurant, bar and self-catering accommodation on a previously industrial site - Eglinton Yard, the former location for the limestone offices and shipping yard. The starting point for the project was to visit Glenarm. Through a methodology of observation, exploration, drawing and making an understanding of the social, cultural and physical aspects of Glenarm was gained.

When the Coast Road was built in 1933, cutting through the village between the old limestone yard and the main street, a disconnection between the village and the coast was created and emphasised when the local industries fell into dereliction. The site, located on the coastal side of the new road, would provide an opportunity to rejuvenate industry and create a new social hub for Glenarm. The building will act as an architectural device combining the existing limestone walls and blurring the threshold between the village and the coast - providing a relief from the immediate thresholds of Glenarm. The intention is realised by combining internal and external spaces within the building envelope, changing levels of containment and intimacy as one journeys though the building.

Between houses and down alleyways within the village, the beauty that lies beyond can be glimpsed - the castle walls, the forest, the river. It is these ‘glimpses’ and the discovery to find them that creates the true picturesque character of Glenarm. The walls of the building are ‘punctured’ at appropriate points allowing for these glimpses to be realised. The result is direct communication between brewers, staff, locals and visitors, potential for ad hoc encounters and passive visual opportunities. A view of a copper brewing tank on approach, the smell of hops and a sense of privacy from, yet connection to, the public space all add to the spatial experience.


Tutor(s)
Jenny Russell
2014
• Page Hits: 14577         • Entry Date: 07 October 2014         • Last Update: 07 October 2014