Next Project

Armagh Hospice

Part 1 Project 2015
Niall Quinn
Queen's University Belfast | UK
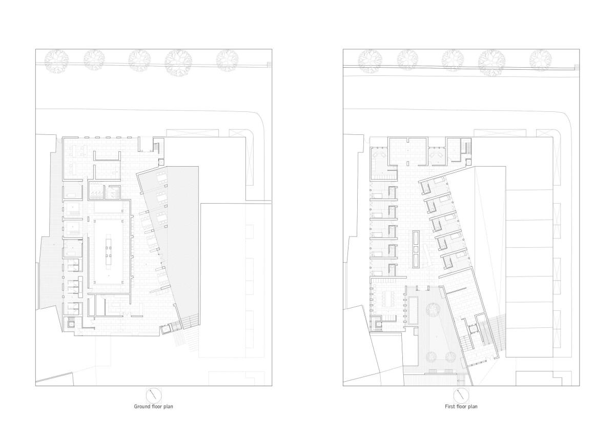
The project is a hospice for the terminally ill in Armagh City. The site is a backlands plot, an informal courtyard to a Georgian masonry, stone and stucco city block. By its nature, the backlands plot is intensely overlooked by the individual buildings of the block. The returns of the perimeter buildings were developed in a non-harmonious way, the lack of rapport lead to a free-for-all of new extensions and fenestrations. To propose a hospice, a place of intimacy and intended tranquility, in this site is a flawed scheme to begin with but it is a curious challenge. The height and various windows of the context starve the hospice of the required daylight and privacy. Public functions such as the therapeutic pools, dining areas and entrances further invade the privacy. The programme is organised so that all intensely private areas are on the upper levels. The bedrooms of the hospice are articulated in such a way that direct and indirect light is always present from above. However, horizontal windows are operated by folding shutters to deal with the privacy issues. The project was restrained by the context that it pushed and pulled to accommodate the preferences.

Tutor(s)
Conor Sreenan
2015
• Page Hits: 5264         • Entry Date: 07 October 2015         • Last Update: 02 November 2015