Next Project

Old Town Forest

Part 2 Project 2015
Min Syn Lim
University of Malaya | Malaysia
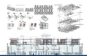
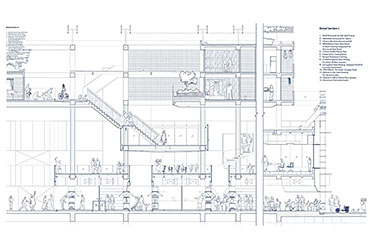
Chungking Mansion is a symbol of Asian urbanism. It signifies the idea of congestion amidst rapid urbanization and the unique Asian consciousness of ‘small peasant mentality’. Smell, sound, cluttering goods, groups of traders, inhabitant, backpackers and shoppers passing through the labyrinthic spaces in a chaotic yet autonomous manner.

Research into the critical meaning of Asian version of town center found that instead of the implanted western piazzas or squares, our town centers are more of a result peculiar culture of congestion in spaces occupied with indescribable mixture and intensity. The antagonist of singularity.

They are often found between the borders of legalities - the western planning laws and the ethos of Modernist architecture. We adapt and twisted the intention of domino and the grid in a different way. The complementaries are kinship and survival rather than the serenity of soleil and brise. The building is the Forest.

Market is an important component of the Forest. The project is a small 3D-city, an extended form of the Malaysian market integrated with the mix-functions of incremental housing and commercial spaces. It explores the idea of hybridity, density and proximity as strategies for sustainability; thus elongating the life of the Asian Forest typology.


Tutor(s)
Naziaty Mohd Yaakob
2015
• Page Hits: 7901         • Entry Date: 07 October 2015         • Last Update: 07 October 2015