Next Project

An industrial work space

Part 2 Project 2015
Filippo Mattia Dobrovich
Margherita Porfirio
Università degli Studi Roma Tre | Italy
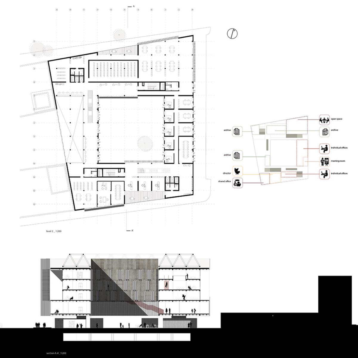
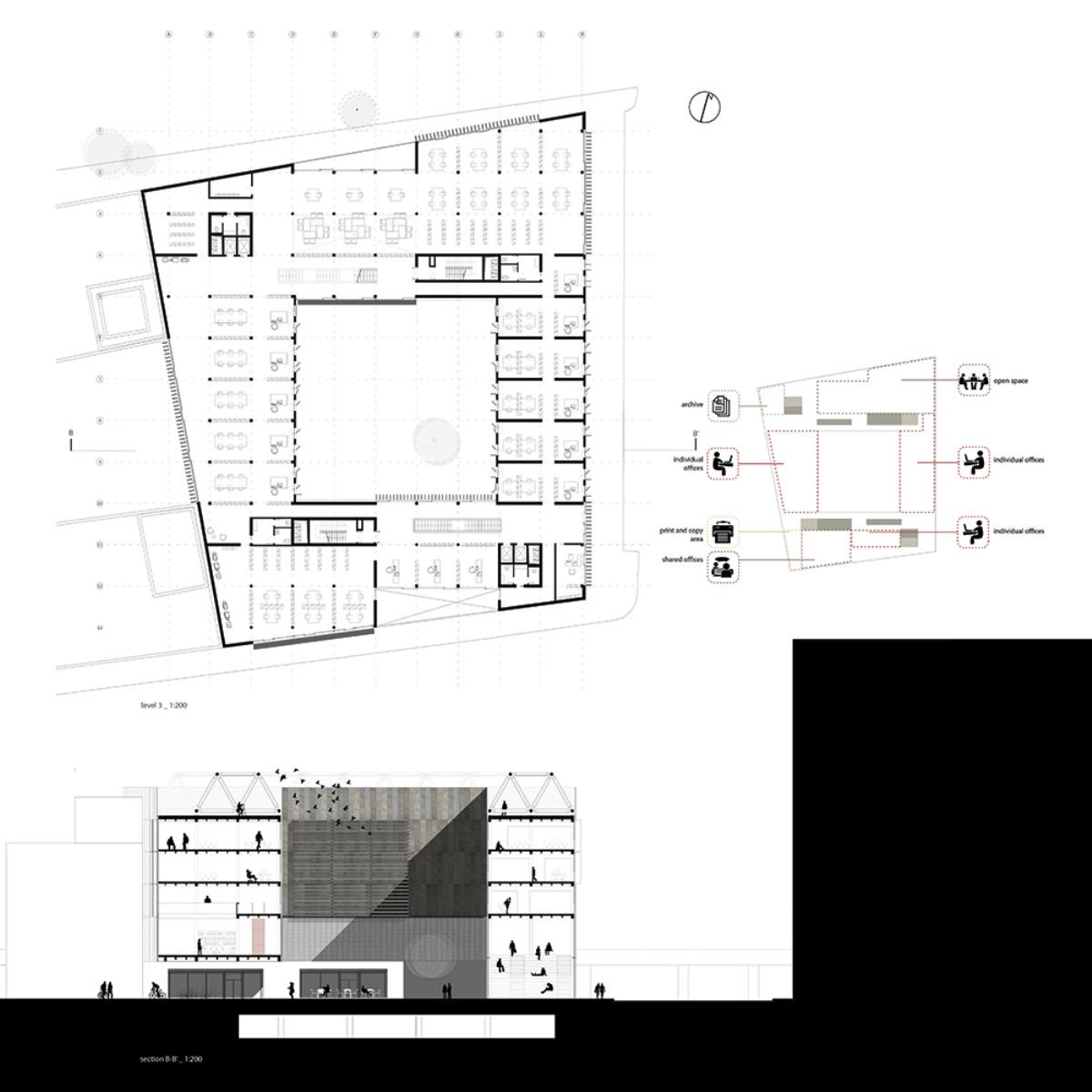
The aim of the project is the realization of an office complex with an internal square courtyard and a underground parking lot. The configuration of the complex also provides a suture in the preexisting fragmented urban tissue by proportionally inserting itself in the residential and commercial tissue close by, granting a unitary image.

The area in which the project insists is an encounter of stratifications and it's filled of architectural complex that represent historical fundamental periods of the city.

Today this area is the core of a big urban requalification plan: underneath the old “Gasometro” a big industrial part of the city is developed and this character is undertaken in the stylistic, technologic and structural elements used in the project

The rotation of the courtyard outside the perimeter of the volume creates two different spaces: a regular space for the individual offices and a more fluent space for the distribution and shared offices.

A fundamental aspect of the whole creative process was to keep a boundary between visual and physical permeability. The building, with a space structure which makes it seemed suspended, is able to preserve what happens inside of the courtyard which is also visible from the outside.


Tutor(s)
Paolo Desideri
2015
• Page Hits: 3635         • Entry Date: 09 October 2015         • Last Update: 09 October 2015